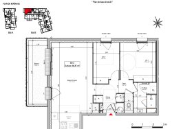
Découvrez ce bel appartement T3 neuf en VEFA de 66,91 m², aux volumes parfaitement optimisés, idéal pour une résidence principale, un premier achat ou un investissement locatif. Situé aux portes d'Angers, dans un environnement calme et recherché, ce bien séduit par la qualité de ses prestations : matériaux soigneusement sélectionnés, finitions contemporaines, belle luminosité et confort de vie optimal. Il se compose de : Un séjour lumineux avec espace cuisine ouvert, Deux chambres confortables, Une salle d'eau moderne, Un balcon offrant une vue dégagée sur un cadre verdoyant et paisible. Vous bénéficierez également de la proximité immédiate des commerces, des transports et des axes rapides vers Angers, facilitant le quotidien. Implanté au sein d'une résidence neuve conforme à la réglementation RE2020, cet appartement garantit performance énergétique, économies et sérénité à long terme. Le DPE sera fourni au plus tard à la livraison de l'appartement. Prix : 249 900 Livraison 4ème trimestre 2027. Vente en l'état futur d'achèvement. Une opportunité rare à saisir rapidement ! Agent commercial RSAC ANGERS 885 348 490 - Honoraires à la charge du vendeur - Les informations sur les risques auxquels ce bien est exposé sont disponibles sur le site Géorisques : https://www.georisques.gouv.fr/. SAS REVO IMMO - MICHALOT Arnaud EI - O674 304 819 - Plus d'informations sur www.revo.immo (réf. 4901051262).
66.91 m²
3 735 €
3
2
1
3
2027
Électrique
Aménagée
Oui
1
Contact SAS REVO IMMO
Contacter gratuitement à l'aide du formulaire ci-dessous.