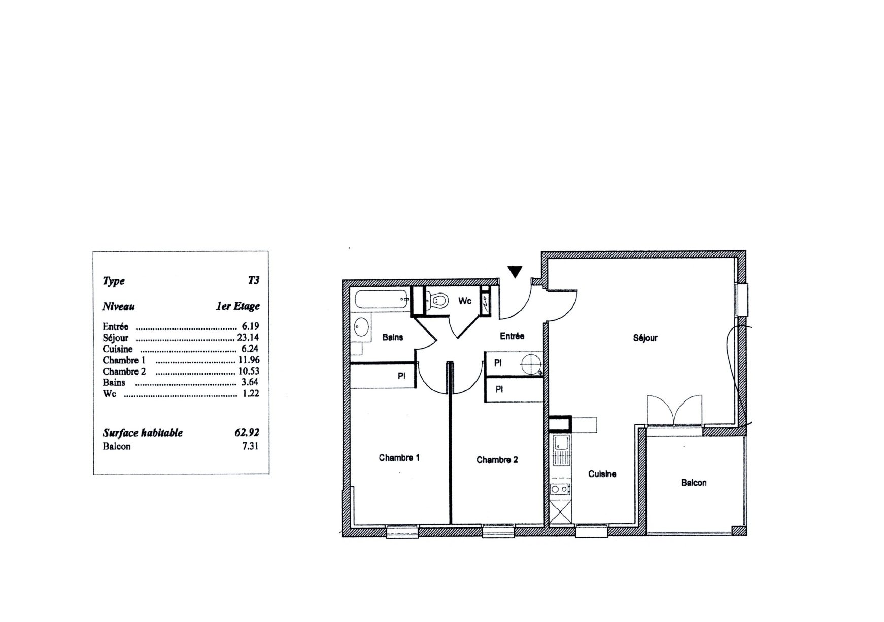
Au Rez-de-chaussée d'un ancien restaurant situé au coeur de la ville de Cour-Cheverny, appartement T3 de 52,20 m2 en excellent état actuellement loué. Il se compose d'une entrée, d'un séjour-salon-cuisine ouverte et équipée (hors frigo), de 2 chambres, d'une salle d'eau et d'un WC séparé. L'appartement est entièrement carrelé, peintures en bon état. Le chauffage est une chaudière individuelle gaz de ville qui assure également la production d'eau chaude. Syndic bénévole, petite copropriété de 3 lots, donc très faibles charges de copropriété (partage de l'assurance de l'immeuble). Bon investissement locatif : demande soutenue en location sur le secteur, rendement locatif de 6,50% brut. Contact : Thierry MORCHOINE. Tel : 06 47 34 51 39. Ce bien est proposé par Thierry MORCHOINE, inscrit au Registre Spécial des Agents Commerciaux sous le numéro 753 035 278, RCS Blois. Carte professionnelle transaction No CPI détenue par Marc Gallon, président SAS NOOVIMO. - Annonce rédigée et publiée par un Agent Mandataire -
52.2 m²
1 904 €
22 m²
3
2
1
1
1930
Consommations énergétiques
Logement économe
325
Logement énergivore (kWhEP/m2/an)
Émissions de gaz à effet de serre
Faible émission de GES
10
Forte émission de GES(kgeqCO2/m2/an)
Contact Thierry MORCHOINE
Contacter gratuitement à l'aide du formulaire ci-dessous.