Au coeur d'une résidence neuve et sécurisée à l'architecture soignée, ce superbe T4 offre un cadre de vie calme à seulement 500 mètres du tramway, des commerces et des parcs. Sa situation privilégiée permet également un accès rapide à la rocade bordelaise.
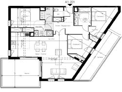
Baigné de lumière grâce à une rare triple exposition, l'appartement dispose d'une vaste pièce de vie de 42 m² s'ouvrant sur une belle terrasse. L'espace nuit, parfaitement agencé, se compose de trois chambres avec placards, dont une suite parentale, complétées par une salle de bain avec WC, un WC indépendant et un cellier pratique.
Atout rare sur le secteur : deux places de parking viennent compléter ce bien (en sus obligatoire au prix de 15 000 ).
Une visite s'impose ! Je reste à votre entière disposition pour vous fournir toute information complémentaire ou organiser une rencontre.
Honoraires à la charge du vendeur. Dans une copropriété de 50 lots. Aucune procédure n'est en cours. DPE en cours. Les informations sur les risques auxquels ce bien est exposé sont disponibles sur le site Géorisques : georisques.gouv.fr.