Appartement T4 de 86 m2 avec terrasse 17 m2 et garage , à Ma
Marsillargues 34590
0
Honoraires à la charge du vendeur.
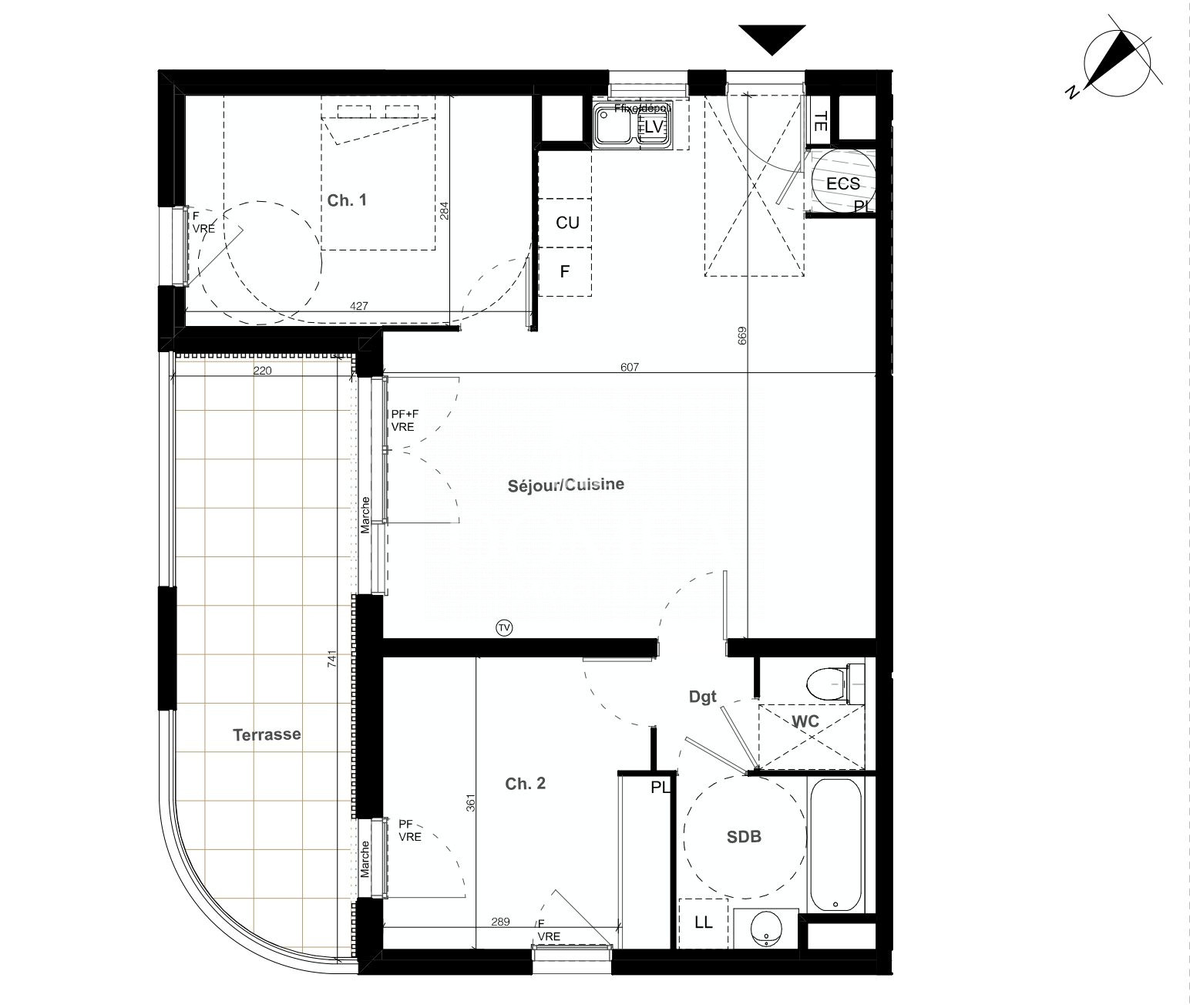
Marsillargues, entre Lunel et la Grande Motte . Appartement de 2025, T4 de 86 m2 habitables avec une terrasse de 17m2, situé au premier étage d'une résidence de deux étages, desservi par ascenseur. Un garage de 20m2 inclus ! L'exposition Sud apporte une belle luminosité à la pièce de vie de 38m2 qui se compose d'un séjour et d'une cuisine ouverte équipée de deux placards pratiques. Les trois chambres de 11m2 disposent également de placards, et l'appartement comprend une salle de bains de 4m2 et des toilettes indépendants. La résidence sécurisée compte seulement quelques appartements, créant une atmosphère chaleureuse et conviviale. Situé au centre du village, vous pourrez profiter d'un environnement calme et paisible tout en ayant toutes les commodités et commerces à proximité immédiate. Cet appartement est construit aux dernières normes pour des dépenses énergétiques réduites et offre des prestations de qualité, telles qu'un chauffage électrique dans les chambres, une climatisation réversible dans la pièce de vie, une salle de bains équipée et un cumulus thermodynamique pour un confort optimal. N'hésitez pas à nous contacter pour plus de renseignements sur ce bel appartement.
86 m²
3 477 €
17 m²
4
3
1
1
1 sur 2
2024
Sud
1 (17 m²)
Oui
1
Oui
1
Oui
Oui (8 lots)
Consommations énergétiques
Logement économe
40
Logement énergivore (kWhEP/m2/an)
Émissions de gaz à effet de serre
Faible émission de GES
5
Forte émission de GES(kgeqCO2/m2/an)
Contact Prodeom Immobilier
Contacter gratuitement à l'aide du formulaire ci-dessous.