Honoraires à la charge de l'acquéreur (Prix hors honoraires : 170000 euros).
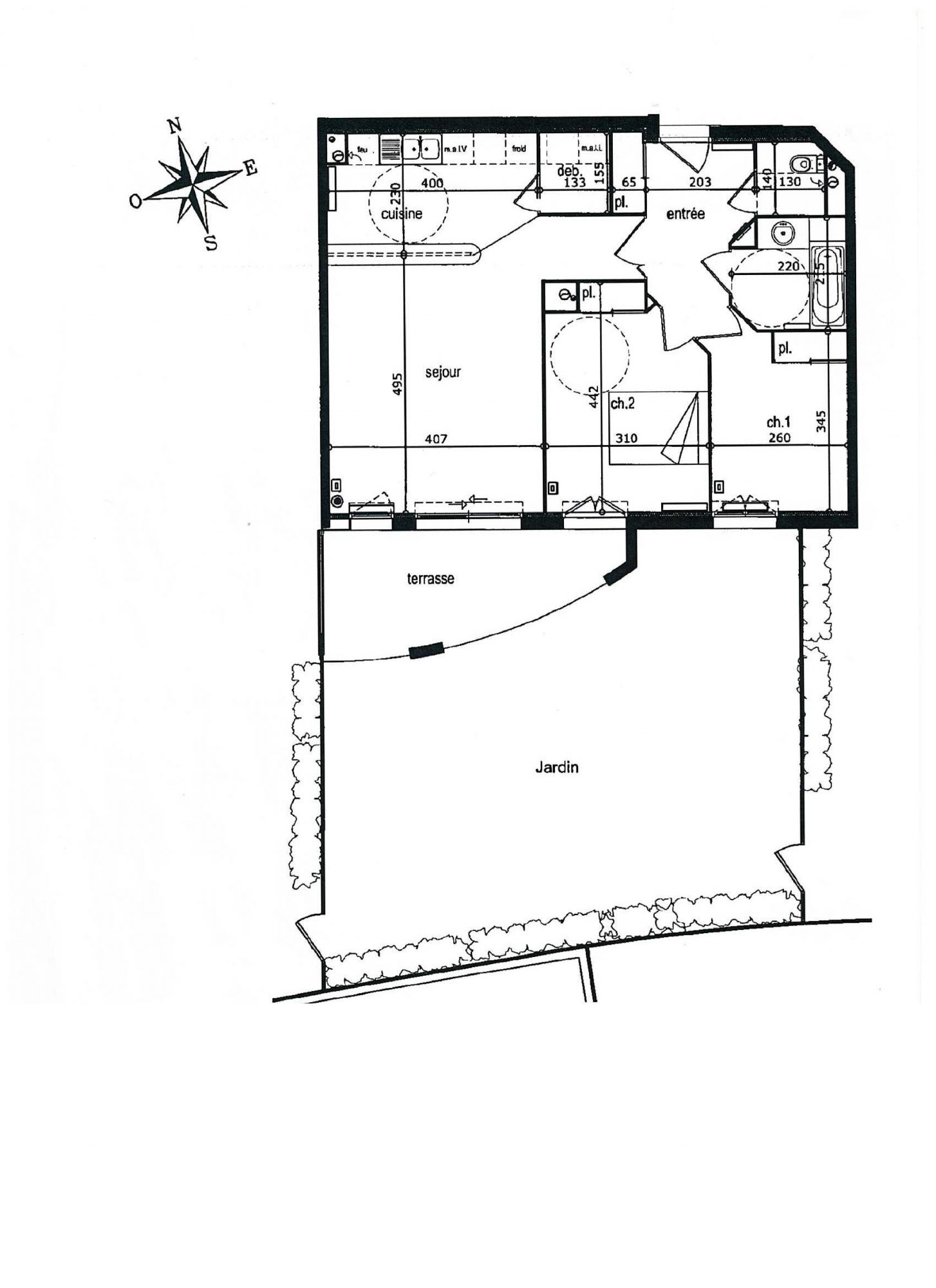
Appartement T4 Spacieux et Lumineux - 85 m² - Libre Découvrez cet appartement T4 exceptionnel de 85 m², baigné de lumière et prêt à vous accueillir !
Entièrement rénové, vous n'aurez qu'a poser vos valises.
Ses atouts, 3 chambres, un garage, une place de parking, et un balcon! Ne manquez pas cette opportunité unique de vivre dans un appartement qui allie espace, lumière et confort. Contactez nous dès aujourd'hui pour une visite et laissez-vous séduire.
Commodités à proximité : Plusieurs commerces et écoles sont accessibles en quelques minutes à pied, tandis qu'un parc verdoyant se trouve à seulement 10 minutes de trajet.
Honoraires inclus de 7.06% TTC à la charge de l'acquéreur. Prix hors honoraires 170 000 . Dans une copropriété de 90 lots. Aucune procédure n'est en cours. Classe énergie C, Classe climat C Montant estimé des dépenses annuelles d'énergie pour un usage standard : entre 1100.00 et 1540.00 sur les années 2021, 2022 et 2023 (abonnements compris). Les informations sur les risques auxquels ce bien est exposé sont disponibles sur le site Géorisques : georisques.gouv.fr.
85 m²
2 141 €
2 m²
4
3
1
1 sur 4
7.06 %
12/02/2026
105.00 € / mois
Oui
1962
Est
Ouest
1 (2 m²)
Oui
1
1
Oui
Oui
Oui (90 lots)
Consommations énergétiques
Logement économe
133
Logement énergivore (kWhEP/m2/an)
Émissions de gaz à effet de serre
Faible émission de GES
28
Forte émission de GES(kgeqCO2/m2/an)
Contact Cpc Invest Pau
Contacter gratuitement à l'aide du formulaire ci-dessous.