Appartement T4 situé dans un environnement verdoyant
Chartres 28000
0
Honoraires à la charge du vendeur.
Bienvenue dans votre futur chez-vous ! Nous sommes ravis de vous présenter cet appartement qui vous séduira par ses volumes et sa luminosité. Situé dans une agréable résidence arborée, vous bénéficierez d'un cadre de vie privilégié, tout en étant proche de toutes commodités. Profitez de nos projections d'aménagements pour apprécier les espaces de cette opportunité à saisir !
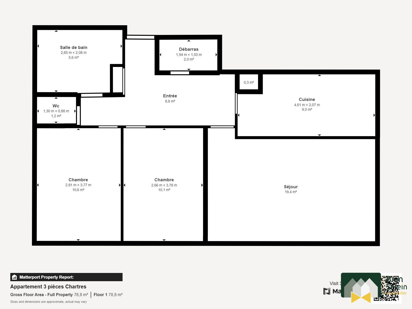
Découvrez un appartement composé comme suit : - Une entrée avec rangement - Une cuisine indépendante - Un spacieux séjour -salon avec balcon - Deux chambres - Une salle de bains avec baignoire et douche - Un wc indépendant - Un débarras
Espaces extérieurs : - Un grand balcon exposé Sud - Résidence avec parc et terrain de tennis
Coté confort : - Résidence avec gardien - Ascenseur - Garage et cave
L'emplacement : En termes de commodités, vous trouverez plusieurs commerces, restaurants, écoles et services de santé à proximité. À 5 minutes à pied, vous pourrez profiter de plusieurs arrêts de bus. À 10 minutes à pied, vous accéderez à un collège et à 15 minutes à pied, vous trouverez une crèche, une école maternelle, une école élémentaire et une école primaire.
N'hésitez pas à contacter votre agent au Noeud Pap' pour obtenir plus d'informations et visiter cet appartement !
Honoraires à la charge du vendeur. Dans une copropriété de 423 lots. Quote-part moyenne du budget prévisionnel 3 516 /an. Aucune procédure n'est en cours. Classe énergie E, Classe climat E Montant moyen estimé des dépenses annuelles d'énergie pour un usage standard, établi à partir des prix de l'énergie de l'année 2023 : entre 1740.00 et 2410.00 . Les informations sur les risques auxquels ce bien est exposé sont disponibles sur le site Géorisques : georisques.gouv.fr.