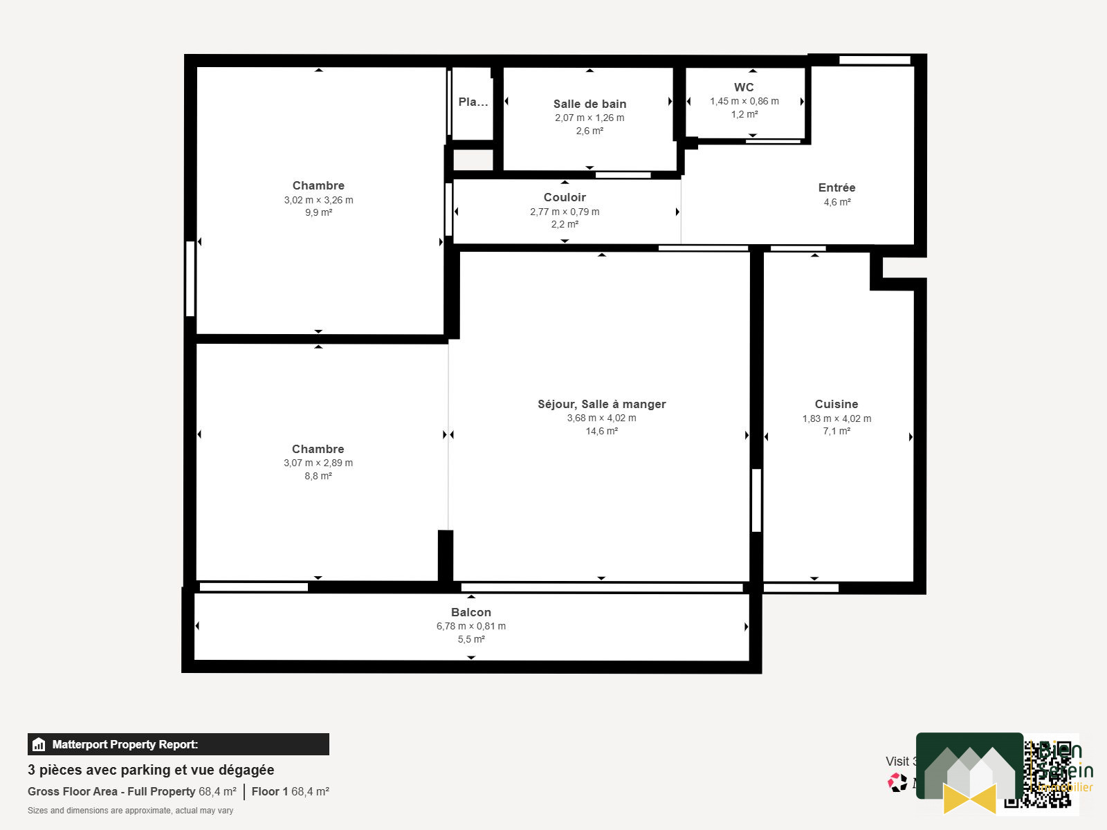
Appartement en parfait état idéalement situé au calme et au premier étage. Ce T3 lumineux, bien exposé et sans vis-à-vis de 55 m² comprend : l'entrée avec placard/penderie, la pièce de vie modulable et lumineuse exposée sud face à un espace verdoyant, la cuisine semi ouverte, 2 chambres dont l'une peut facilement se transformer en une extension de l'espace de vie salon/séjour, loggia, salle d'eau avec douche, WC séparé. La loggia exposée sud permet de profiter de l'extérieur avec table et chaise par exemple. Les ouvrants sont en PVC double vitrage et volet PVC. Le bien comprend également une cave, un grenier et parking devant l'entrée de la résidence. L'accès à l'entrée de la résidence se fait par un badge. Le niveau d'isolation permet de rendre l'appartement économique en termes de charges de chauffage qui sont comprises dans les charges de copropriété. Ecoles, commerces, services publics à proximité, arrêts de bus à moins de 100 mètres.
Cette annonce référence 308288 vous est présentée par votre agent commercial BSK Immobilier DOMINIQUE CURE (EI) immatriculé au RSAC de CHARTRES (28000) sous le numéro 89922354900010.
Prix du bien : 109 000,00 €
Les honoraires d'agence sont à la charge du vendeur.
A propos de la copropriété :
Pas de procédure en cours.
Nombre de lots : 3
Charges prévisionnelles annuelles : 1 250,00 €
A propos des performances énergétiques :
Date de réalisation du diagnostic énergétique : 13/02/2025
Score DPE : 154 kWhEP/m²/an
Score GES : 32 kgepCO2/m²/an
Montant estimé des dépenses annuelles d'énergie pour un usage standard : entre 680.00 € et 950.00 € par an. Prix moyens des énergies indexés sur l'année 2025 (abonnements compris).
Les informations sur les risques auxquels ce bien est exposé sont disponibles sur le site Géorisques : www.georisques.gouv.fr
55 m²
1 982 €
3
2
1
1
1 sur 5
1965
Sud
Oui
Consommations énergétiques
Logement économe
154
Logement énergivore (kWhEP/m2/an)
Émissions de gaz à effet de serre
Faible émission de GES
32
Forte émission de GES(kgeqCO2/m2/an)
Contact Iad France - Dominique CURE
Contacter gratuitement à l'aide du formulaire ci-dessous.