Le Quai des Queyries, dans le quartier de la Bastide à Bordeaux, offre un cadre de vie prisé et dynamique, avec de superbes vues sur le centre historique de la ville, en bord de Garonne. Alliant modernité et patrimoine, le quartier propose de nombreux espaces verts, notamment le Jardin Botanique, et une vie de quartier animée avec ses restaurants, commerces, marchés et espaces culturels, comme Darwin et la Cité du Vin. Bien desservi par le tramway et les pistes cyclables, il permet un accès rapide au centre-ville et dispose de toutes les commodités pour les familles et les étudiants, faisant de la Bastide un secteur idéal pour un cadre de vie agréable, calme et naturel préservé.
Découvrez ce studio traversant avec sa terrasse sud/ouest situé dans une résidence neuve et à taille humaine, offrant un cadre de vie contemporain et exceptionnel. Doté d'une terrasse en bois, exposée Sud-Ouest, cet espace extérieur baigné de soleil est parfait pour profiter des beaux jours et se détendre en plein air.
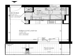
À l'intérieur, l'appartement présente une entrée avec son placard, une pièce de vie spacieuse avec son coin kitchenette et une salle d'eau avec wc.
Grâce à son ouverture donnant sur la terrasse sans vis à vis avec vue dégagée, cette pièce bénéficie d'une luminosité naturelle exceptionnelle, créant une ambiance conviviale et chaleureuse, idéale pour recevoir ou simplement se détendre chez soi
Un véritable havre de paix, où le confort rencontre la modernité.
- Frais de Notaires Réduits - Aucun Travaux à Prévoir - Garanties - RT 2012 - ...
Visuel non contractuel suggestion d'aménagement
STUDIO TRAVERSANT DANS BORDEAUX AVEC TERRASSE
Honoraires à la charge du vendeur. Dans une copropriété de 24 lots. Aucune procédure n'est en cours. DPE en cours. Les informations sur les risques auxquels ce bien est exposé sont disponibles sur le site Géorisques : georisques.gouv.fr.
Votre conseiller RH Patrimoine : Gérant associé - Philippe HERVE Carte T CPI 3301 2018 000 029 220
29 m²
6 517 €
18 m²
1
1
1
6 sur 6
2026
Sud
Ouest
Oui
Oui
Oui
1
Oui
Oui
Oui (24 lots)
Contact Philippe HERVE
Contacter gratuitement à l'aide du formulaire ci-dessous.