Appartement Venissieux 2 pièces terrasse et Jardin
Vénissieux 69200
0
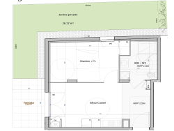
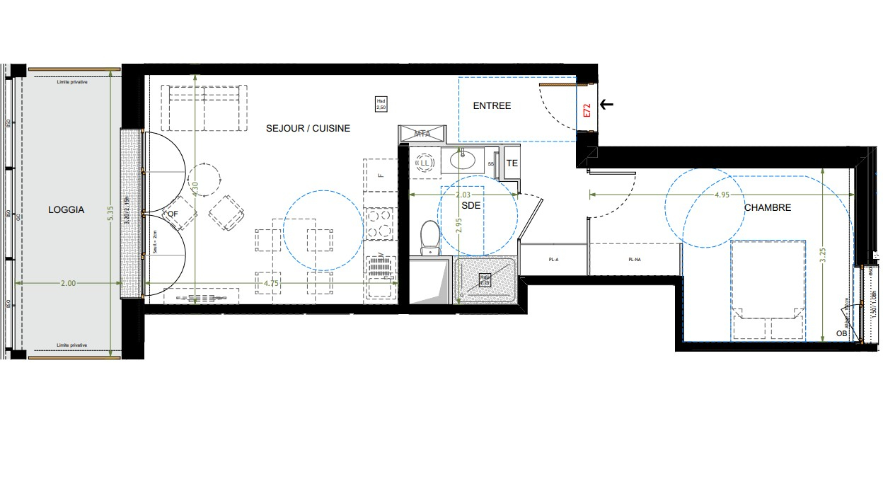
Dernière opportunité ! A visiter ! A Vénissieux, proximité du Tram T6, je vous propose à la vente ce bel appartement de 38m² avec Terrasse et Jardin aux dernières normes comprenant : une entrée, un séjour avec cuisine ouverte donnant sur la terrasse de 7m² et sur le jardin de 28,27m², une chambre, une salle d'eau et un WC. L'appartement est vendu avec une place de parking en sous sol Isolation phonique et thermique renforcés, faibles charges. Visuel non contractuel. Merci de contacter votre conseiller Grégory pour plus d'informations Copropriété de 38 lots - dont 38 lots habitation. (Pas de procédure en cours). Charges annuelles : 700 euros.