PLATEAU A AMENAGER - VUE LOIRE - TERRASSE - GARAGE
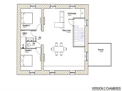
Dans un ensemble immobilier de 8 lots, Au 2ème et dernier étage, Loire Investissement vous propose un plateau à aménager d'une superficie de 84.68 m², terrasse de 12 m² avec vue imprenable sur la Loire Possibilité de créer T3 ou T4
Des travaux sont en cours de réalisation : - Changement des menuiseries en PVC/ALU - Création d'une terrasse en bois avec garde-corps métal de 12 m² - Reprise de la façade, enduit ton pierre - Modification des escaliers d'accès - Plafond cathédrale avec Velux
Pompe à chaleur autorisée Garage
Proximité des commerces, accès bords de Loire, places de stationnement à proximité
DPE : E - Montant estimé des dépenses annuelles d'énergie pour un usage standard entre 1870 et 2580 par an. Prix moyens des énergies indexés au 1er janvier 2021 (abonnements compris)
Honoraires à la charge du vendeur. Logement à consommation énergétique excessive : Classe énergie F, Classe climat F Montant moyen estimé des dépenses annuelles d'énergie pour un usage standard, établi à partir des prix de l'énergie de l'année 2021 : entre 1870.00 et 2580.00 . Les informations sur les risques auxquels ce bien est exposé sont disponibles sur le site Géorisques : georisques.gouv.fr.
Votre conseiller Loire Investissement Saint Just Saint Rambert : Chantal DUPLOMB Agent commercial (Entreprise individuelle) RSAC 923219281 RCP 62643368
84.68 m²
2 067 €
1
2 sur 2
1
Oui
Consommations énergétiques
Logement économe
326
Logement énergivore (kWhEP/m2/an)
Émissions de gaz à effet de serre
Faible émission de GES
71
Forte émission de GES(kgeqCO2/m2/an)
Contact Loire Investissement
Contacter gratuitement à l'aide du formulaire ci-dessous.