Situé au 3ème et dernier étage d'une résidence calme et sécurisée, cet appartement vous séduira par son cadre de vie agréable dans un environnement recherché.
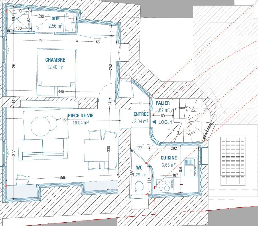
Il offre une entrée avec rangement, un séjour lumineux, une cuisine et une chambre avec placard, tous prolongés par une belle terrasse, une salle d'eau, WC.
Résidence de 1993- Copropriété de 132 lots
Quote part annuelle moyenne de charges de copropriété : 1914€ /an
Comprenant le Chauffage collectif Gaz, l'eau chaude et l'eau froide
Aucune procédure de copropriété en difficulté ou en état de carence.
L'offre d'achat et le dossier de candidature sont à télécharger sur notre site : soclova.fr
Date limite de remise du dossier de candidature et de l'offre d'achat le 02/11/2025 à 23h59.
Les informations sur les risques auxquels ce bien est exposé sont disponibles sur le site Géorisques : www. georisques. gouv. fr
48 m²
3 448 €
2
1
1
1
3 sur 3
1993
Séparée
Oui
Consommations énergétiques
Logement économe
177
Logement énergivore (kWhEP/m2/an)
Émissions de gaz à effet de serre
Faible émission de GES
35
Forte émission de GES(kgeqCO2/m2/an)
Contact SOCLOVA ACCESSION
Contacter gratuitement à l'aide du formulaire ci-dessous.