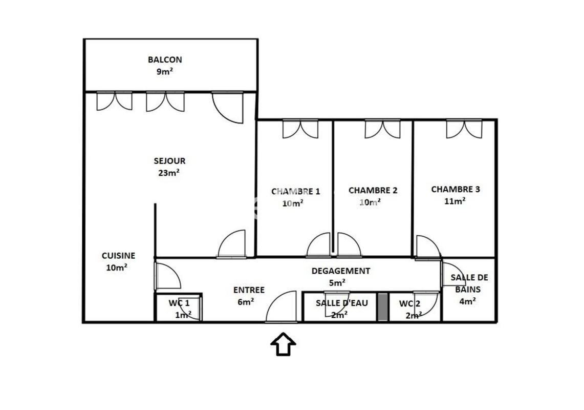
RARE! A deux pas de la gare SNCF d'Argenteuil et à proximité des commerces, dans un immeuble de 2013, au 4ème étage avec ascenseur, nous vous proposons un 4 pièces avec un séjour et une cuisine ouverte aménagée, 3 chambres dont une avec salle d'eau privative, une salle de bains et 2 wc. Traversant et calme. Chauffage et eau chaude collective gaz. Si vous souhaitez plus d'informations, votre agence immobilière CFB IMMOBILIER se fera un plaisir de vous renseigner
Honoraires à la charge du vendeur. Dans une copropriété de 80 lots. Quote-part moyenne du budget prévisionnel 3 264 /an. Aucune procédure n'est en cours. Classe énergie D, Classe climat D Montant estimé des dépenses annuelles d'énergie pour un usage standard : entre 390.00 et 580.00 sur les années 2021, 2022 et 2023 (abonnements compris). Les informations sur les risques auxquels ce bien est exposé sont disponibles sur le site Géorisques : georisques.gouv.fr.