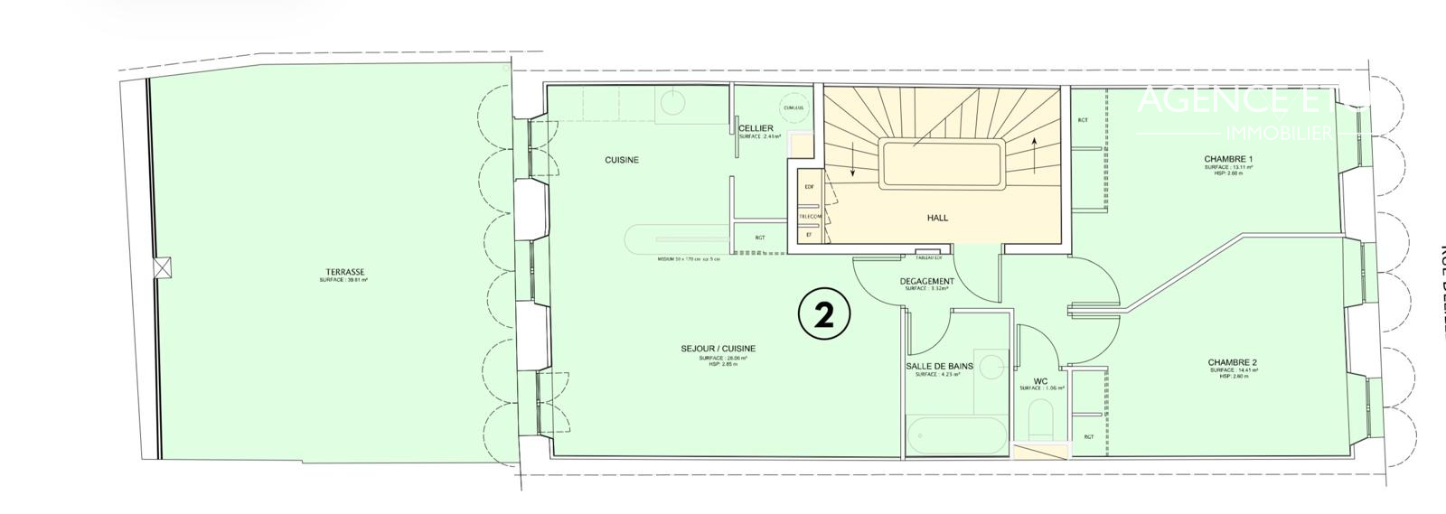
Architecture typiquement marseillaise pour cet mmeuble situé au coeur du quartier Saint-Charles qui accueille un duplex de caractère industriel revisité de 103 m2, configuré en type 3, offrant de superbes volumes et une atmosphère singulière. Dès l'entrée la pièce de vie (51 m2) séduit par sa hauteur sous plafond remarquable, sa luminosité naturelle et son esprit loft. Le séjour et l'espace salle à manger développent une surface généreuse, idéale pour recevoir avec une circulation fluide entre les différents espaces. La cuisine ouverte, fonctionnelle et conviviale, s'intègre parfaitement à l'ensemble. A l'étage le coin nuit propose une vaste chambre principale (33 m2) aux volumes rares, ainsi qu'un espace complémentaire (11 m2) pouvant accueillir un bureau, une chambre d'appoint ou un dressing selon les besoins. La salle de bains complète, avec douche et baignoire , renforce le confort de vie. Vous serez séduit par ce duplex offrant des volumes atypiques baignés de lumière et bénéficiant d'un emplacementcentral privilégié, à proximité immédiate des transports, des commerces et de la gare. DPE 141 kW ep/an (Classe C)- GES: 9 Kg CO2/m2 an (Classe B) Estimation des coûts annuels d'énergie entre 1080 Euros et 1500 Euros. Prix de vente 320250 euros Honoraires à la charge du vendeur. Contact: Marc BESSONE/ 06 89 75 30 06 - marco.bessone@pm-immobilier.fr Les informations sur les risques auquels ce bien est exposé sont disponibles sur le site www.georisque.gouv.fr
Duplex
104 m²
3 079 €
4
2
Sud
Ouest
Oui
Oui
Oui
Oui (17 lots)
Consommations énergétiques
Logement économe
112
Logement énergivore (kWhEP/m2/an)
Émissions de gaz à effet de serre
Faible émission de GES
4
Forte émission de GES(kgeqCO2/m2/an)
Contact BESSONE Marc
Contacter gratuitement à l'aide du formulaire ci-dessous.