Type 3/4 rénové Marseille 1er (Saint-Charles / Maurice Bou
Marseille 13001
0
Honoraires à la charge du vendeur.
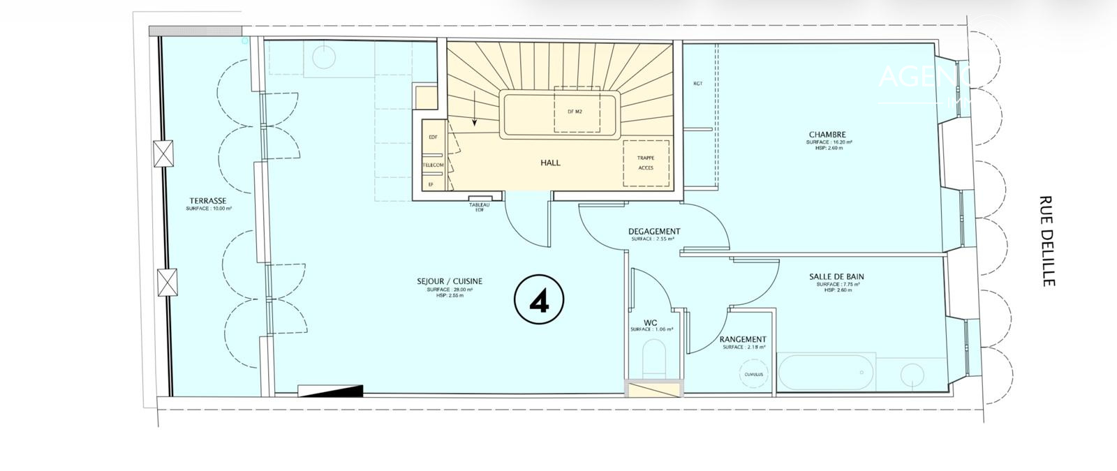
L'Agence Étoile vous propose à la vente un bel appartement traversant rénové, situé boulevard Maurice Bourdet, 13001 Marseille, au 6e étage avec ascenseur. Ce bien développe une surface de 85,72 m2 Carrez pour 94,52 m2 au sol, et bénéficie d'une terrasse de 7,5 m2 offrant une vue dégagée sur la Gare Saint-Charles et les collines environnantes. L'appartement se compose d'une entrée spacieuse avec rangements, d'un séjour parqueté de 27,6 m2 ouvrant sur la terrasse, d'une cuisine indépendante de 9,4 m2 avec accès à une loggia, de deux chambres confortables de 13,8 m2 et 11,2 m2, d'une salle de bains rénovée et de WC séparés. Il dispose également de nombreux placards, d'un dressing, de dépendances ainsi que d'une véranda de 8,4 m2 venant compléter l'ensemble. Le chauffage est individuel au gaz. L'appartement a fait l'objet d'une rénovation complète, incluant la salle de bains, les peintures, ainsi que la réfection de l'électricité et de la plomberie, offrant ainsi un bien prêt à être occupé sans travaux. Sa luminosité, liée à sa double exposition et à ses larges baies vitrées, sa vue totalement dégagée, son emplacement central, ainsi que ses volumes généreux avec terrasse et annexes, en font un bien rare sur le secteur. Pour toute prise de rendez-vous, contactez Monsieur PERSIA Kévin au O6 26 34 14 86.
85.72 m²
3 675 €
27 m²
4
2
1
1
6 sur 7
Est
Ouest
Oui
Oui
1
Oui (45 lots)
Consommations énergétiques
Logement économe
118
Logement énergivore (kWhEP/m2/an)
Émissions de gaz à effet de serre
Faible émission de GES
25
Forte émission de GES(kgeqCO2/m2/an)
Contact PERSIA Kevin
Contacter gratuitement à l'aide du formulaire ci-dessous.