Venez découvrir cette résidence à taille humaine de 16 lots nichée dans le centre-ville de Blanquefort et à proximité immédiate de Bordeaux : accessible en 20 minutes par le TRAM. En hyper centre, la résidence prend place harmonieusement dans cet environnement prisé.
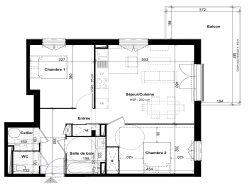
Il se compose d'une entrée avec placard donnant sur un volumineux séjour/cuisine avec placard, prolongé par sa terrasse. Ensuite, vous profiterez d'un cellier avec son ballon thermodynamique, d'un WC Indépendant, d'une salle de bain aménagée et équipée, ainsi que de deux chambres avec placard.
Ce bien répond à tous les besoins pour s'épanouir dans un environnement agréable.
Une place de parking en SUS obligatoire sécurisée complète ce bien (20 818).
UNE LOCALISATION DANS LE BOURG TANT RECHERCHE
Honoraires à la charge du vendeur. Dans une copropriété de 16 lots. Aucune procédure n'est en cours. DPE en cours. Les informations sur les risques auxquels ce bien est exposé sont disponibles sur le site Géorisques : georisques.gouv.fr. Ce bien vous est proposé par un agent commercial (Entreprise individuelle).