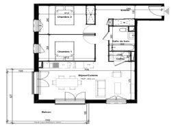
DERNIER ÉTAGE AVEC GRANDE TERRASSE AU COEUR DE BLANQUEFORT
Au sein d'une résidence à taille humaine idéalement située, à proximité de la mairie de Blanquefort, des commerces, transports et écoles, venez découvrir ce superbe appartement T3 avec terrasse.
Il se compose d'une jolie pièce de vie de 27m2 très lumineuse grâce à ses trois grandes ouvertures sur l'extérieur. Celles-ci vous donne accès sur la superbe terrasse de 18m2 exposée Sud. Côté nuit, vous disposerez de deux grandes chambres dont une avec placard, une salle de bains avec WC ainsi qu'un cellier offrant du rangement supplémentaire.
Deux places de parking complètent ce bien en SUS.
D'autres appartements sont disponibles dans la résidence, nous contacter pour plus d'informations.
DERNIER ÉTAGE AVEC GRANDE TERRASSE AU COEUR DE BLANQUEFORT
Honoraires à la charge du vendeur. Dans une copropriété de 22 lots. Aucune procédure n'est en cours. DPE en cours. Les informations sur les risques auxquels ce bien est exposé sont disponibles sur le site Géorisques : georisques.gouv.fr. Ce bien vous est proposé par un agent commercial (Entreprise individuelle).