Honoraires à la charge de l'acquéreur (Prix hors honoraires : 134000 euros).
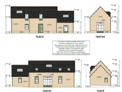
VERN SUR SEICHE : Entre Nouvoitou et Vern-sur Seiche, très beau projet de rénovation pour cette maison indépendante ancienne en pierres et terres. Permis de construire accepté pour une maison de 155 m2 habitables. Un préau à rénover sur la parcelle pouvant faire office de garage. Les réseaux de viabilisation sont en attente au bord du terrain. L'ensemble sur une parcelle d'environ 1325 m2. Bien non soumis au DPE. Prix : 134 000 EUR + 5360 EUR (Honoraire 4 % TTC à la charge de l'acquéreur). Pour tous renseignements, merci de contacter C'TOUTAIN & A'LAVENNE Immobilier au 06.10.07.32.74 ou 06.63.16.76.51 Les informations sur les risques auxquels ce bien est exposé sont disponibles sur le site Géorisques : www.georisques.gouv.fr
155 m²
899 €
1325 m²
6
4
1
1
2
4.00 %
1
1
Contact LAVENNE
Contacter gratuitement à l'aide du formulaire ci-dessous.