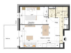
La résidence bénéficie d'un emplacement idéal au coeur de la station de La Toussuire. Vous pouvez accéder aux commerces, restaurants et activités à pieds. Départ et retour skis aux pieds, la résidence se trouve au début des remontées mécaniques, vous faisant bénéficier d'un gain de temps considérable lors de vos journées de skis Ce très beau T2 (4 couchages) de 38,25m² est composé d'un séjour avec cuisine équipée ouvert sur un balcon de 6,48m², une chambre, une salle de bains et un wc séparé . une place de parking en sous-sol est vendu avec l'appartement Découvrez une nouvelle génération de résidence secondaire locative : Liberté d'occupation propriétaire Revenus locatifs saisonniers Sérénité de gestion Bâtiment basse consommation Contactez Grégory pour plus d'informations au O6.69.26.64.26 Visuel non contractuel Copropriété de 107 lots - dont 107 lots habitation. (Pas de procédure en cours). Charges annuelles : 1200 euros.