À LOUER T3 ? APPARTEMENT NEUF À CERGY
Photos non contractuelles !
Résidence « Les 3 Fontaines » ? 11 avenue des 3 Fontaines, 95000 Cergy
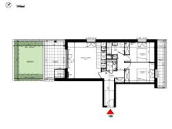
Venez découvrir cet appartement neuf de type T3 de 67 m² dans un cadre moderne et confortable. Situé au 1er étage avec ascenseur, cet appartement comprend 2 chambres, une salle de bain, WC ainsi un séjour lumineux avec cuisine ouverte, créant un espace convivial. Il dispose 2 terrasses de 18m² et d'un jardin privatif de 21m² pour profiter de l'extérieur.
Un cellier sur la terrasse et 2 places de stationnement en sous-sol sécurisé complètent ce bien .
Ce bien est équipé d'un chauffage et eau chauds collectifs au gaz et respectent les dernières normes énergétiques (RT 2012), garantissant confort et économies d'énergie.
Un emplacement idéal:
? À 2 min à pied du centre commercial Les 3 Fontaines
? Gare RER A Cergy Préfecture accessible en moins de 5 min à pied
? Accès rapide à l'A15 et à la N184 vers La Défense et Paris
? Restaurants, services, cinéma, médiathèque, et pôles universitaires à proximité immédiate
Écoles et services:
? Université de Cergy, école de commerce, établissements scolaires et crèches accessibles à pied
? Espaces verts, parcours piétons, et bords de l'Oise à quelques minutes
Contactez-nous dès maintenant !
Les informations sur les risques auxquels ce bien est exposé sont disponibles sur le site Géorisques : www.georisques.gouv.fr
67 m²
3
2
1
1
1
1
Consommations énergétiques
Logement économe
66
Logement énergivore (kWhEP/m2/an)
Émissions de gaz à effet de serre
Faible émission de GES
10
Forte émission de GES(kgeqCO2/m2/an)
Contact OIKO GESTION
Contacter gratuitement à l'aide du formulaire ci-dessous.