L'agence 'MON BIEN A LA MER', spécialiste de l'immobilier neuf sur les côtes Bretonnes, vous présente :
Nouvelle réalisation entre Terre et Mer, à pied du Centre Bourg et 1,5km des plages et du Golf. Une petite résidence à taille humaine, au calme, entourée de champs, sur les hauteurs, offrant de belles vues dominantes. Livraison 3è trimestre 2026.
Frais de notaire réduits, Ascenseur, Normes RE2020. Accès sécurisé, local à vélos.
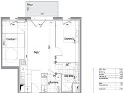
Beau T3 exposé Ouest comprenant séjour, deux chambres, salle d'eau, wc, buanderie, Parking.
Nous consulter.
Honoraires à la charge du vendeur. Dans une copropriété de 9 lots. Aucune procédure n'est en cours. Non soumis au DPE. Les informations sur les risques auxquels ce bien est exposé sont disponibles sur le site Géorisques : georisques.gouv.fr.
Votre conseiller MON BIEN A LA MER : Gérant - .fr MON BIEN A LA MER Carte T CPI 2201 2018 000 025 040 RCP ACM IARD B1 7025278
62 m²
4 823 €
3
2
1
1 (séparé)
1 sur 2
Oui
1
1
Oui
Oui (9 lots)
Contact mon bien à la mer
Contacter gratuitement à l'aide du formulaire ci-dessous.