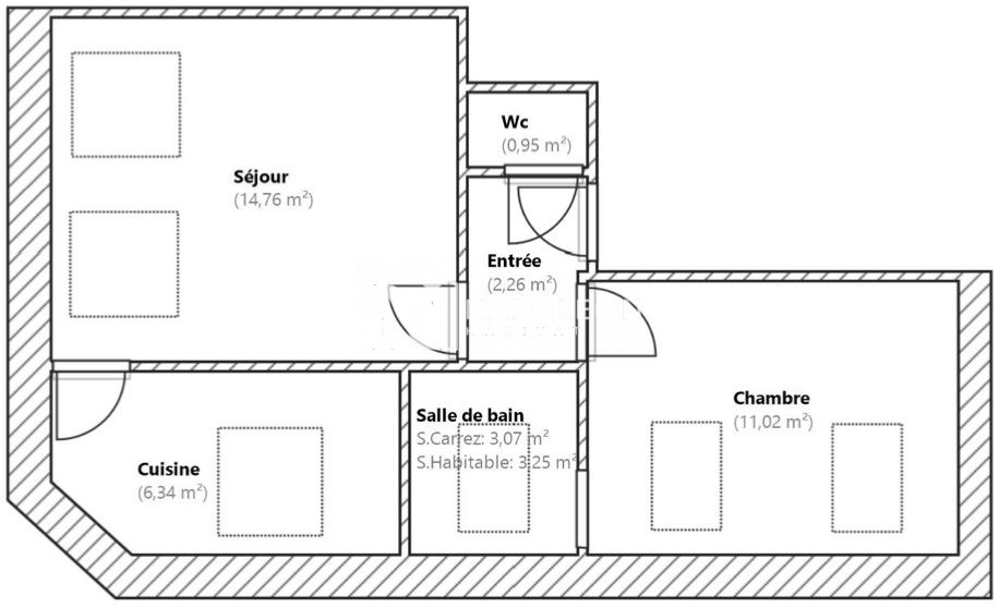
À deux pas de la faculté de droit, l'agence Faelens immobilier vous propose cet appartement de type 2 de 50m2 situé au deuxième étage d'une copropriété de quatre lots, idéalement situé à deux pas des écoles et des commerces. Il se compose d'un grand séjour lumieux orienté plein sud, un coin cuisine entièrement équipée, une grande chambre avec rangements ainsi qu'une salle de bain moderne entièrement rénovée.
A venir découvrir !
161 000 euros frais d'agence inclus - honoraires à la charge du vendeur
FAIRE OFFRE APRES VISITE
Franck VITOUX chez FAELENS IMMOBILIER 06 95 99 56 64 ou 03 20 49 01 73
Venez découvrir toutes nos annonces et nos exclusivités uniquement sur notre site
Honoraires à la charge du vendeur. Dans une copropriété de 4 lots. Quote-part moyenne du budget prévisionnel 1 400 /an. Aucune procédure n'est en cours. Classe énergie D, Classe climat D Montant estimé des dépenses annuelles d'énergie pour un usage standard : entre 1120.00 et 1560.00 sur les années 2021, 2022 et 2023 (abonnements compris). Les informations sur les risques auxquels ce bien est exposé sont disponibles sur le site Géorisques : georisques.gouv.fr.
Carte pro. CPI59062018000031613
49.78 m²
3 234 €
22 m²
2
Oui
Oui
Oui (4 lots)
Consommations énergétiques
Logement économe
234
Logement énergivore (kWhEP/m2/an)
Émissions de gaz à effet de serre
Faible émission de GES
49
Forte émission de GES(kgeqCO2/m2/an)
Contact Franck VITOUX
Contacter gratuitement à l'aide du formulaire ci-dessous.