« En immobilier, la simplicité et l'emplacement sont souvent les clés d'un projet réussi. »
Napoléon Habitat vous présente cet appartement de type 2, situé dans le quartier recherché des Bois-Blancs à Lille, au sein d'une petite copropriété à taille humaine de 3 étages.
Le bien bénéficie d'une localisation privilégiée, à proximité immédiate des transports en commun (métro, bus, V'Lille), des axes autoroutiers, des commerces et de l'ensemble des commodités. Le cadre de vie est particulièrement apprécié grâce à la proximité de la Deûle, de la Gare d'Eau et des universités de Vauban, accessibles en quelques minutes.
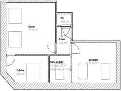
L'appartement se compose d'une pièce de vie agréable, d'une cuisine fonctionnelle, d'une chambre confortable et d'une salle de bain. Un bien idéal pour une première acquisition ou un investissement locatif, dans un secteur à forte attractivité.
Napoléon Habitat reste à votre disposition pour toute information complémentaire ou pour organiser une visite.
Honoraires à la charge du vendeur. Dans une copropriété de 7 lots. Aucune procédure n'est en cours. Classe énergie C, Classe climat A Montant estimé des dépenses annuelles d'énergie pour un usage standard : entre 691.00 et 936.00 sur les années 2021, 2022 et 2023 (abonnements compris). Les informations sur les risques auxquels ce bien est exposé sont disponibles sur le site Géorisques : georisques.gouv.fr.
Votre conseiller Napoléon Habitat : Moustafa BOUGDI Agent commercial (Entreprise individuelle) RSAC 881374201 RCP 62709207. Les informations sur les risques auxquels ce bien est exposé sont disponibles sur le site Géorisques : http://www.georisques.gouv.fr . L'agence ne peux détenir ni percevoir des fonds autres que sa rémunération et ses honoraires. Vous souhaitez plus de renseignement sur ce bien, nous vous invitons à nous contacter directement au 07.57.85.85.85, ou à consulter directement notre site internet www.napoleon-habitat.fr