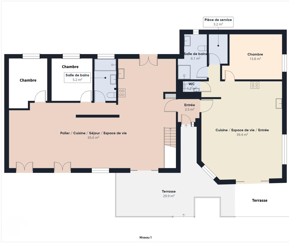
PULP-IMMOBILIER ESTAIRES vous présente cette magnifique maison bourgeoise au cachet préservé, rénovée avec goût d'environ 215 m2 hab., offrant un hall d'entrée, un salon séjour de 50 m2 env parqueté avec une cheminée, une cuisine équipée, une salle de billard, au 1er étage, 3 chambres dont une avec salle de douche, une grande salle de bains, au 2ne étage, 3 grandes chambres. Une terrasse de 40 m2, Un double garage.
Et pour se détendre, un pool House avec une belle et grande piscine chauffée et couverte.
Le tout sur un jardin paysagé clos et exposé plein sud.
Ce bien vous intéresse, contactez rapidement votre agence locale PULP-IMMOBILIER.
Nous avons hâte de découvrir votre projet.
Vous êtes propriétaires ?! Nous vous offrons l'estimation de votre bien.
215 m²
2 321 €
50 m²
7
6
1
2
1880
Sud
Oui
Consommations énergétiques
Logement économe
246
Logement énergivore (kWhEP/m2/an)
Émissions de gaz à effet de serre
Faible émission de GES
38
Forte émission de GES(kgeqCO2/m2/an)
Contact PULPIMO
Contacter gratuitement à l'aide du formulaire ci-dessous.