Exclusivité - Blois proche centre ville - T2 de 45 m²
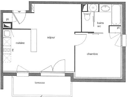
Situé dans une résidence avec ascenseur, cet appartement en bon état, de type loft se compose d'un séjour de 22 m² avec un coin cuisine aménagé, donnant sur une grande terrasse de 15 m² bien exposée, un espace nuit avec placard, une salle d'eau et wc séparés. Un grand débarras vient compléter les prestations de cet appartement. 1 place de parking privative en extérieur. Proximité des bords de Loire et du centre ville ( 5 min à pied). Double vitrage
Cet appartement est idéal pour une première acquisition ou un investissement locatif. Pas de travaux à prévoir.
A propos de la copropriété: Elle se compose de 43 lots principaux. Les charges annuelles sont de 1519 incluant l'eau et le chauffage.
Les honoraires sont à la charge du vendeur.
Honoraires à la charge du vendeur. Dans une copropriété de 43 lots. Aucune procédure n'est en cours. Classe énergie D, Classe climat D Montant moyen estimé des dépenses annuelles d'énergie pour un usage standard, établi à partir des prix de l'énergie de l'année 2021 : entre 488.00 et 662.00 . Les informations sur les risques auxquels ce bien est exposé sont disponibles sur le site Géorisques : georisques.gouv.fr.
Carte pro. CPI 4101 2017 000 022 059
44.84 m²
2 096 €
22 m²
2
1
1
1
-2 sur 2
1992
Oui
1
1
Oui (43 lots)
Consommations énergétiques
Logement économe
195
Logement énergivore (kWhEP/m2/an)
Émissions de gaz à effet de serre
Faible émission de GES
36
Forte émission de GES(kgeqCO2/m2/an)
Contact Océane MAUGUIN
Contacter gratuitement à l'aide du formulaire ci-dessous.