Bureau avec Terrasse dans le 11ème - Un Open Space Clé en Main
Paris 75011
0
Honoraires à la charge de l'acquéreur (Prix hors honoraires : 0 euros).
Les charges de location sont prévisionnelles mensuelles avec régularisation annuelle.
Vous cherchez des postes de travail pour votre équipe ?
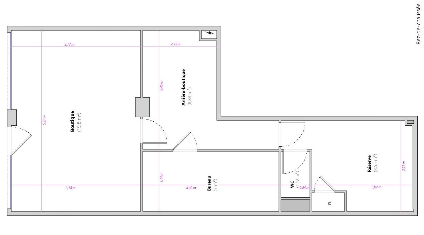
Vous aimez les espaces lumineux, les ambiances collaboratives et une terrasse pour souffler entre deux réunions ? Ajoutez à cela la fibre optique dédiée, un environnement de post-production audiovisuel, un plateau de tournage fond vert équipé, et vous tenez peut-être votre nouvel espace de travail idéal ! Situé en plein coeur du 11ème arrondissement, à deux pas des métros Parmentier et Oberkampf, au 5 rue de Nemours, ce bureau de 50m² est une alternative parfaite au coworking, offrant flexibilité et confort.
L'ESPACE EN DÉTAIL : 6 postes de travail en open space, dans un coin dédié Beaucoup de lumière naturelle pour travailler dans un cadre agréable Terrasse et cour intérieure pour des pauses au vert Bureau meublé et prêt à l'emploi
ÉQUIPEMENTS INCLUS : Fibre optique dédiée et WiFi ultra-rapide Plateau de tournage fond vert équipé (idéal pour les agences créatives) Cuisine équipée & espace repas Espace détente pour des moments de pause bien mérités Rangement pour vélos Service de nettoyage inclus Climatisation en été, chauffage en hiver Accès sécurisé 24h/24 et 7j/7 avec carte et clé
UN QUARTIER DYNAMIQUE & INSPIRANT Idéal pour une agence de communication, une agence web, des concepteurs 3D ou toute activité complémentaire à la post-production audiovisuelle.
Hyper accessible : Métros Parmentier (Ligne 3) et Oberkampf (Lignes 5 et 9) à quelques minutes à pied.
Un quartier vivant : Restaurants, cafés et bars branchés pour vos afterworks.
CONDITIONS DE LOCATION : 1500 HT/mois tout inclus Dépôt de garantie : 4500 F rais d'agence : 4500 HT
À PROPOS DE L'HÔTE : Équipe de 6 à 10 personnes Le bruit ne nous dérange pas, on travaille en équipe et souvent tard le soir Aucun dress code imposé Langues parlées : Français & Anglais
Prêt à installer votre équipe dans un cadre stimulant et convivial ? Contactez-nous pour organiser une visite !
Non soumis au DPE. Les informations sur les risques auxquels ce bien est exposé sont disponibles sur le site Géorisques : georisques.gouv.fr.
Votre conseiller Brew's : Gérant - Samy-Félix PICARD Carte T CPI75012018000026018 RCP 799 316 435 Retrouvez l'annonce de l'agence immobilière Brew's sur : http://www.brews.fr/immobilier/immobilier-professionnel-local-commercial-paris-location-fr_LP133.htm
50 m²
10/02/2025
Oui
Contact Brew's
Contacter gratuitement à l'aide du formulaire ci-dessous.