Honoraires à la charge de l'acquéreur (Prix hors honoraires : 0 euros).
Les charges de location sont forfaitaires mensuelles.
À louer Local de 62 m² en souplex Paris 13? (rue de Croulebarbe)
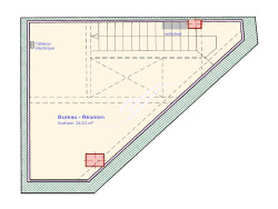
Situé 45 rue de Croulebarbe, Paris 13?, ce local en souplex développe une surface totale de 62 m², comprenant 37 m² en rez-de-chaussée et 27 m² en sous-sol.
Le bien est proposé à usage de bureau, commerce, habitation ou occupation mixte. Implanté dans un immeuble d'habitation de 1976, au calme du quartier Croulebarbe, le local bénéficie d'une excellente luminosité grâce à de grandes baies vitrées ouvrant sur le square René-Le-Gall, très arboré.
Le rez-de-chaussée se compose d'un open space de 16 m², d'un espace semi-ouvert de 7 m², d'une pièce de 9,5 m², d'un espace kitchenette et d'un sanitaire. Le sous-sol comprend une grande pièce de 24 m², éclairée zénithalement, avec parquet massif en acajou.
Le local peut être loué meublé, avec de nombreux rangements, 6 postes de travail modernes, une table ronde avec 4 chaises et une table de réunion (environ 2 m x 1 m). Une jardinière extérieure privative ainsi qu'un bac à plantes devant l'entrée apportent un aspect accueillant à la façade.
Très bien desservi par les métros Corvisart, Les Gobelins et Place d'Italie. Stationnement voiture possible dans la rue, parking gratuit pour scooters et vélos dans l'immeuble (1er sous-sol).
Immeuble avec gardien. Accès sécurisé par clé à code et badge magnétique. Disponibilité immédiate
Pour plus de renseignements, contactez Monsieur Alexandre Boscher au 06 70 67 56 57
Honoraires de 8 000 à la charge du locataire. 300 /mois de charges forfaitaires. DPE en cours. Les informations sur les risques auxquels ce bien est exposé sont disponibles sur le site Géorisques : georisques.gouv.fr.