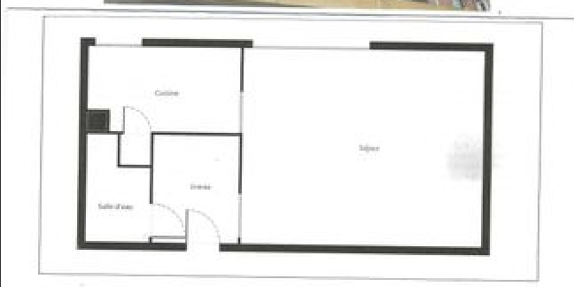
Beau studio Quai de Jemmapes, Emplacement recherché Idéal investisseur ou premier achat À deux pas du métro Jaurès (lignes 2 et 5), idéalement situé quai de Jemmapes, dans un environnement calme et recherché. Au sein d'un immeuble de standing très bien entretenu, doté de belles parties communes, d'une gardienne à temps complet, et sécurisé par Vigik et interphone, le Cabinet BR vous propose ce studio de 25 m2 parfaitement agencé. Situé au 4ème étage avec ascenseur, il bénéficie d'une vue dégagée et d'une excellente luminosité grâce à son exposition plein Est. Il se compose d'une entrée, d'un séjour spacieux et lumineux, d'une cuisine équipée, d'une salle d'eau avec douche, meuble vasque et WC, ainsi que de nombreux rangements. Une cave complète ce bien. Chauffage et eau chaude collectifs. Taxe foncière : 869 EUR
À visiter sans tarder.
25 m²
11 200 €
1
1
4 sur 8
255 € / mois
1971
Sud
Ouest
Oui
Oui
Oui
Oui
Oui
Oui (171 lots)
Consommations énergétiques
Logement économe
180
Logement énergivore (kWhEP/m2/an)
Émissions de gaz à effet de serre
Faible émission de GES
50
Forte émission de GES(kgeqCO2/m2/an)
Contact FOUATIH
Contacter gratuitement à l'aide du formulaire ci-dessous.