Les charges de location sont prévisionnelles mensuelles avec régularisation annuelle.
La part des honoraires pour la réalisation de létat des lieux de ce bien est de 211.5 euros.
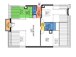
CATTENOM/SENTZICH - L'agence OPEN IMMOBILIER vous propose ce bel appartement de type F4, situé au 2ieme et dernier étage de la résidence. Ce sympathique appartement offre une superficie habitable totale de 70.5 m2 carrez( 100m2 au sol) et se compose principalement comme suit : une entrée avec placard intégré, un spacieux espace de vie composé d'un salon/séjour et d'une cuisine américaine équipée, le tout accédant directement à la terrasse, deux chambres à coucher faisant respectivement 10.17 m2 et 11.05 m2, une salle de bains et un WC séparé. L'appartement dispose en annexe d'un garage fermé. Loyer : 1050 EUR Charges : 50 EUR ** TOTAL : 1100 EUR / mois ** Dépôt de garantie : 1050 EUR (soit un mois de loyer hors charges) Conformément à la loi ALUR Honoraires Agence : 775.5 EUR TTC (Visite, constitution du dossier et rédaction du bail : 8EUR TTC / M2 soit 564.00 EUR et Etat des lieux d'entrée : 3EUR TTC / M2 soit 211.50 EUR) Pour plus de renseignements, nous consulter ! Agence Open Immobilier à Hettange-Grande - 03 82 54 73 57 www.open57.f
70.5 m²
3 m²
20 m²
3
2
1
1
2 sur 2
775.5 %
50 € / mois
2010
Sud
Ouest
1 (3 m²)
1
Oui
Oui
Consommations énergétiques
Logement économe
161
Logement énergivore (kWhEP/m2/an)
Émissions de gaz à effet de serre
Faible émission de GES
6
Forte émission de GES(kgeqCO2/m2/an)
Contact ULAS Unal
Contacter gratuitement à l'aide du formulaire ci-dessous.