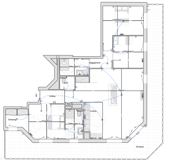
Dans une copropriété de standing en pierre de taille, un appartement de cinq pièces de 120m² d'une belle entrée, d'un double séjour, orienté Ouest, baigné de soleil et ouvrant sur un balcon-terrasse, d'une cuisine dinatoire aménagée et équipée. Trois chambres dont une suite parentale avec accès à un balcon parfaitement au calme donnant sur jardin, une salle d'eau, une salle de bains . Une cave en sous-sol et un double box complètent le bien. Ses prestations de qualité, sa distribution ainsi que son excellente situation au coeur de la Garenne, vous séduiront. Appartement coup de coeur
Honoraires à la charge du vendeur. Dans une copropriété de 6 lots. Aucune procédure n'est en cours. Classe énergie D, Classe climat B Montant moyen estimé des dépenses annuelles d'énergie pour un usage standard, établi à partir des prix de l'énergie de l'année 2021 : entre 1670.00 et 2310.00 . Les informations sur les risques auxquels ce bien est exposé sont disponibles sur le site Géorisques : georisques.gouv.fr.
120 m²
8 042 €
30 m²
5
3
1
1
1 (séparé)
2 sur 3
270.00 € / mois
1987
Oui
Oui
2
1
Oui
Oui (6 lots)
Consommations énergétiques
Logement économe
237
Logement énergivore (kWhEP/m2/an)
Émissions de gaz à effet de serre
Faible émission de GES
7
Forte émission de GES(kgeqCO2/m2/an)
Contact AGENCY
Contacter gratuitement à l'aide du formulaire ci-dessous.