Centre Ville Salon de Provence - Refait rénové à Neuf - Appartement type 2 RDC 35 m2 - dépendance cave. ( Idéale pour personnes à mobilité réduite)
Salon-de-Provence 13300
0
À VENDRE ? Appartement T2 en rez-de-chaussée, refait à neuf avec cave .
Ville : Salon-de-Provence (13300)
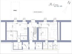
Surface : 35 m²
Livraison : Mars 2026 après fin des travaux de rénovation .
Description :
Situé au c?ur de Salon-de-Provence, cet appartement T2 de 35 m² en rez-de-chaussée est idéalement conçu pour les personnes à mobilité réduite, les jeunes couples ou les investisseurs. Totalement refait à neuf, il offre des prestations modernes et un emplacement privilégié proche de toutes commodités.
Caractéristiques principales :
? Pièce de vie : Séjour/cuisine de 18 m², lumineux et fonctionnel
? Chambre : Une chambre spacieuse de 12 m², attenante à la salle de bain
? Dépendances : Cellier de 2,64m² et cave de 3,50m²
? Sanitaires : Salle de bain moderne et WC séparé
Atouts de la résidence :
? Accès piéton facile au centre-ville et ses nombreuses boutiques, marchés et événements culturels
? Proximité des transports : 30 minutes de l'aéroport de Marseille Provence et de la gare TGV Aix-en-Provence (navettes disponibles)
? Environnement agréable avec écoles, cinéma, infrastructures sportives et espaces de loisirs
Pourquoi choisir cet appartement ?
? Emplacement stratégique : tout se fait à pied depuis votre logement.
? Bien refait à neuf, parfait pour un premier achat ou un investissement locatif.
? Livraison prévue Mars 2026 , offrant un logement clé en main. Après rénovation total et fin des travaux .
Contactez-nous dès maintenant pour en savoir plus ou réserver ce bien exceptionnel !
Contact :
Laurent Billard ? BSK Immobilier
06 02 06 11 01
l.billard@bskimmobilier.com
Cette annonce référence 265005 vous est présentée par votre agent commercial BSK Immobilier LAURENT BILLARD (EIRL) immatriculé au RSAC de SALON-DE-PROVENCE (13300) sous le numéro 88751462800023.
Prix du bien : 148 000,00 €
Les honoraires d'agence sont à la charge du vendeur.
A propos de la copropriété :
Pas de procédure en cours.
Nombre de lots : 3
Charges prévisionnelles annuelles : 1 000,00 €
DPE vierge.
Les informations sur les risques auxquels ce bien est exposé sont disponibles sur le site Géorisques : www.georisques.gouv.fr
35 m²
4 229 €
2
1
1
1925
Sud
Est
Oui
Oui
Contact BILLARD LAURENT
Contacter gratuitement à l'aide du formulaire ci-dessous.