CHALONVILLARS - Proche BELFORT - Plateau à rénover (Réf VH
Châlonvillars 70400
0
Honoraires à la charge de l'acquéreur (Prix hors honoraires : 45000 euros).
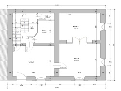
CHALONVILLARS - Proche BELFORT - Plateau à rénover (Réf VH2109) Au centre du village de Châlonvillars, proche des commerces, école et transports en commun, dans un immeuble de 2 appartements, PLATEAU sur 2 niveaux d'environ 130 m2 à rénover entièrement, avec jardin et place de stationnement. Beau potentiel. A visiter.