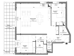
A proximité immédiate du centre de charbonnière, dans un très joli parc arboré, je vous propose à la vente cet appartement de 86m² avec Terrasse, aux dernières normes comprenant : une entrée, un grand séjour de 43m² avec cuisine ouverte donnant sur une terrasse de 21,95m², deux chambres, une salle de bains et un WC séparé. Isolation phonique et thermique renforcés, faibles charges. Visuel non contractuel. Merci de contacter votre conseiller Grégory pour plus d'informations Copropriété de 46 lots - dont 46 lots habitation. Charges annuelles : 1800 euros.