Charbonnières Les Bains 4 pièces Terrasses et Jardin
Charbonnières-les-Bains 69260
0
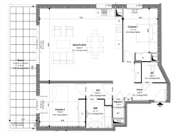
A proximité immédiate du centre de charbonnière, dans un très joli parc arboré, je vous propose à la vente cet très bel appartement de 109m² avec Terrasse et son jardin, aux dernières normes comprenant : une entrée, un séjour avec cuisine ouverte donnant sur une terrasse de 24,25m², une suite parentale avec salle de bains, deux autres chambres, une salle d'eau et 2 WC séparé. Isolation phonique et thermique renforcés, faibles charges. Visuel non contractuel. Merci de contacter votre conseiller Grégory pour plus d'informations Copropriété de 46 lots - dont 46 lots habitation. Charges annuelles : 1800 euros.