Bienvenue dans votre futur chez-vous ! Nous sommes ravis de vous présenter ce superbe 2 pièces Profitez de notre visite virtuelle et de photos haute qualité pour découvrir cette opportunité à saisir dans un secteur calme et recherché du centre ville de CHARTRES.
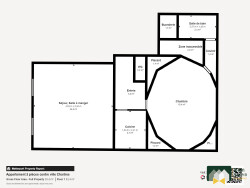
Découvrez un appartement composé comme suit
-Un séjour avec belle hauteur sous plafond -Une cuisine aménagée indépendante -Chambres atypique avec rangements -Un WC indépendant -Une salle d'eau
CÔTÉ CONFORT
-Double vitrage Bois -Petite copropriété de 6 appartements
L'EMPLACEMENT
Il y a tout à pied, niveau transports en commun on trouve la gare à moins de 10 minutes. Le Filibus à proximité vous transportera dans toute l'agglomération. Vous vous trouverez également à proximité des commerces, restaurants, boulangerie, une boucherie et divers services.
N'hésitez pas à contacter votre agent au Noeud Pap' pour obtenir plus d'informations et visiter ce charmant appartement !
Honoraires à la charge du vendeur. Dans une copropriété de 7 lots. Aucune procédure n'est en cours. Classe énergie E, Classe climat B. Montant estimé des dépenses annuelles d'énergie pour un usage standard : entre 1597.00 et 0 sur les années 2021, 2022 et 2023 (abonnements compris). Date de réalisation du DPE : 03-12-2026. Les informations sur les risques auxquels ce bien est exposé sont disponibles sur le site Géorisques : georisques.gouv.fr.
Votre conseiller Bien Serein immobilier : Morgan GOHIER Agent commercial (Entreprise individuelle) RSAC 910254119
63 m²
2 344 €
25 m²
2
1
1
1 (séparé)
147.33 € / mois
1850
Oui (7 lots)
Consommations énergétiques
Logement économe
325
Logement énergivore (kWhEP/m2/an)
Émissions de gaz à effet de serre
Faible émission de GES
10
Forte émission de GES(kgeqCO2/m2/an)
Contact Morgan GOHIER
Contacter gratuitement à l'aide du formulaire ci-dessous.