Charmant appartement avec combles aménagés à Modane Ville
Modane 73500
0
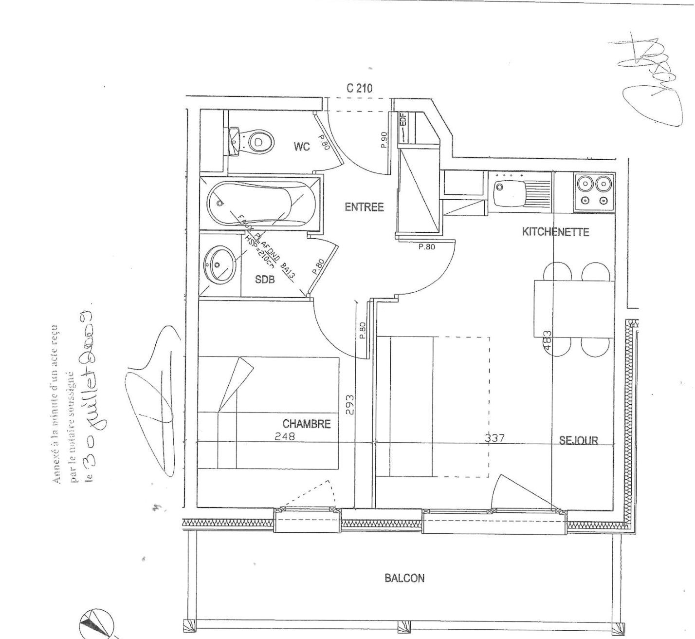
Situé dans une petite copropriété sans charges, cet appartement lumineux vous séduira par son agencement et son emplacement idéal. Il se compose d'un séjour convivial avec cuisine ouverte, d'une grande chambre, d'une salle d'eau avec WC, ainsi que de combles aménagés offrant une seconde chambre et un point d'eau supplémentaire. Vous bénéficierez également d'une grande cave, parfaite pour le rangement ou le stockage. L'appartement se trouve dans une rue peu passante, à seulement 5 minutes à pied des commerces et des restaurants du centre-ville, alliant ainsi calme et praticité au quotidien. Quelques travaux de rafraîchissement sont à prévoir, et des améliorations peuvent être envisagées pour optimiser la performance énergétique (DPE). Une belle opportunité à découvrir sans tarder ! Je reste à votre disposition, Katy LAMBERT, 06 07 46 11 47
45 m²
1 311 €
3
2
1
1
Oui
Oui (4 lots)
Consommations énergétiques
Logement économe
518
Logement énergivore (kWhEP/m2/an)
Émissions de gaz à effet de serre
Faible émission de GES
17
Forte émission de GES(kgeqCO2/m2/an)
Contact DIDIER
Contacter gratuitement à l'aide du formulaire ci-dessous.