Découvrez une adresse rare et recherchée au coeur du 8ème arrondissement de Marseille, au sein d'une résidence privée de prestige.
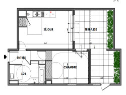
Un pied dans le 8e arrondissement et l'autre dans le 9e, au coeur de tout et pourtant dans un calme olympien, tout Marseille s'offre à vous : le quartier Sainte-Anne, le Vélodrome, l'emblématique Cité radieuse de Le Corbusier, la place Castellane et le Vieux Port à quelques encablures plein nord ; le belvédère du mont Sainte-Croix et le Massif de Saint-Cyr à l'Est ; l'escale Borély et les plages du Prado à quelques pas ou coups de pédale à l'ouest ; et au sud, la voie royale vers les calanques et toutes sortes d'aventures En retrait du boulevard Michelet, l'indispensable axe nord-sud marseillais, Le Phoenix réalise l'alchimie de la vie en ville rêvée : toutes les commodités et l'énergie du quartier Sainte-Anne, avec son atmosphère de village chaleureux, sont à quelques pas de votre havre de paix ! La frénésie du triangle d'or adoré des Marseillais a beau être à portée immédiate, aucune nuisance ne vient troubler votre tranquillité, au coeur d'un quartier résidentiel paisible, sûr et verdoyant. Commerces, écoles, professionnels de santé, espaces verts, loisirs ou encore pratique sportive sont accessibles simplement, à pied ou en mobilité douce, pour un quotidien sans tracas ; et, avec la proximité des transports en commun (multiples lignes de bus, métro) et du réseau autoroutier, se déplacer dans le centre ou hors la ville est on ne peut plus facile. Nous vous proposons à la vente ce charmant T2 neuf de 42.38m2 et sa spacieuse terrasse de 19.08m2 en rdc alliant calme et proximité de tout. Le bien se compose d'une chambre avec accès direct à la terrasse, d'une salle de bain, de WC séparés. Situé au rez-de-chaussée d'un petit immeuble de deux étages, il offre un cadre de vie calme et agréable. Est compris dans la vente une place de parking extérieur au sein de la copropriété. Pour plus de renseignements vous pouvez nous contacter au 06.25.40.50.19. Prix de vente 245 000EUR Disponible à partir du 31/12/2026.
42.38 m²
5 781 €
2
1
1
2026
Sud
Est
1
Oui (146 lots)
Contact CABINET EMH
Contacter gratuitement à l'aide du formulaire ci-dessous.