Charmante maison de hameau possibilité 2 appartements indépe
Six-Fours-les-Plages 83140
0
BAISSE DE PRIX MIEUX QU'UN APPARTEMENT ! Achetez une Maison de Ville en MONOPROPRIETE composée de deux appartements indépendants reliés par une élégante cage d'escalier intérieure, cette Maison offre un potentiel exceptionnel sur deux niveaux avec deux compeurs séparés. PAS DE CHARGES EMPLACEMENT IDEAL Située dans un cadre bucolique, à proximité du massif du Mai, tout en étant proche du centre-ville et de ses commodités, vous pourrez profiter du calme absolu des hauteurs arborées et résidentielles de SIX FOURS LES PLAGES, non loin du Brusc.
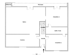
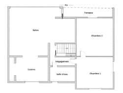
Le T3 situé au premier niveau dispose d'une cuisine séparée donnant sur un lumineux séjour avec cheminée, ouvrant sur une terrasse avec vue dégagée donnant sur la le massif du Mai, la mer et notamment l'île du ROUVEAU directement visibles depuis le salon à travers une large baie vitrée.
Le rez-de-chaussée, avec ses deux chambres et grande pièce de vie, bénéficie également d'une terrasse privée avec accès extérieur indépendant. Ou Profitez en famille de la totalité des 120 m2 de ce 6 pièces
RARE ! A Ne Pas Manquer !
Cette annonce vous est proposée par M. Romain MARCELIS LECCIA - EI - NoRSAC: 808 544 456, Enregistré au Greffe du tribunal de commerce de TOULON
120 m²
3 075 €
6
4
2
2
Sud
1
2
Consommations énergétiques
Logement économe
158
Logement énergivore (kWhEP/m2/an)
Émissions de gaz à effet de serre
Faible émission de GES
5
Forte émission de GES(kgeqCO2/m2/an)
Contact MARCELIS LECCIA Romain
Contacter gratuitement à l'aide du formulaire ci-dessous.