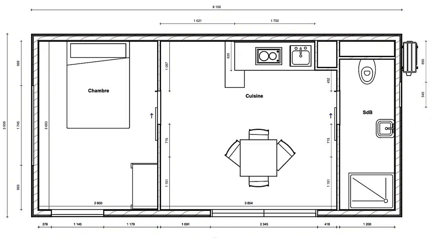
Exclusivité: Sauclières. Découvrez cette adorable maison de 45 m² env nichée au c?ur d'un petit village paisible du sud Aveyron. Entièrement rénovée avec goût, elle ne demande qu'à être habitée! Profitez d'une lumineuse pièce de vie, d'une grande chambre confortable et d'une vaste cave offrant de multiples possibilités. Pour votre confort la maison est équipée de volets roulants électriques et d'huisseries double vitrage; A l'exterieur, une petite terrasse vous invite à la détente. Vous n'aurez rien à faire, juste profiter du calme de Sauclières. Votre contact: JAYET Guy au 0611566624
Cette annonce référence 296966 vous est présentée par votre agent commercial BSK Immobilier GUY JAYET (EI) immatriculé au RSAC de RODEZ (12000) sous le numéro 32740043800039.
Prix du bien : 43 000,00 €
Les honoraires d'agence sont à la charge du vendeur.
A propos des performances énergétiques :
Date de réalisation du diagnostic énergétique : 16/07/2025
Score DPE : 286 kWhEP/m²/an
Score GES : 35 kgepCO2/m²/an
Montant estimé des dépenses annuelles d'énergie pour un usage standard : entre 1230.00 € et 1710.00 € par an. Prix moyens des énergies indexés sur l'année 2023 (abonnements compris).
Les informations sur les risques auxquels ce bien est exposé sont disponibles sur le site Géorisques : www.georisques.gouv.fr
45 m²
956 €
3
1
1
1
1900
Sud
Oui
Consommations énergétiques
Logement économe
286
Logement énergivore (kWhEP/m2/an)
Émissions de gaz à effet de serre
Faible émission de GES
35
Forte émission de GES(kgeqCO2/m2/an)
Contact JAYET GUY
Contacter gratuitement à l'aide du formulaire ci-dessous.