Coup de coeur - 3 pièces de 73 m2 - Vue exceptionnelle & loggia - Parc de la Bérengère 92210 Saint-Cloud
Saint-Cloud 92210
0
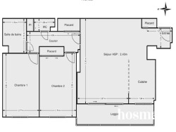
Hosman vous propose à la vente ce charmant 3 pièces d'une surface de 65,16 m2 Carrez (73,23m2 au sol), situé Parc de la Bérengère à Saint Cloud.
L'appartement se trouve au 10ème et dernier étage avec ascenseur dans une copropriété calme et sécurisée. La résidence arborée propose de nombreuses prestations : parcs, tennis, gardiens.
Planifiez facilement votre visite en choisissant le créneau qui vous convient depuis le site d'Hosman.
Le bien se compose :
- D'un séjour lumineux de 30 m2 donnant sur une superbe loggia de 8m2 avec une vue dégagée sur l'hippodrome de Saint-Cloud - Orientation Ouest
- D'une cuisine semi-ouverte sur la pièce de vie, équipée et parfaitement agencée avec de nombreux rangements
- D'une première chambre de 12 m2 avec placard intégré
- D'une seconde chambre de 11 m2
- D'une grande salle de bain avec une baignoire
- D'un WC séparé
- Un grand espace de rangement se trouve dans le couloir, ce qui permet d'optimiser les espaces de l'appartement
Une cave complète ce bien ainsi qu'une place de parking en placement libre
Le système de chauffage est au sol, collectif au gaz. Les charges de copropriété s'élèvent à 800 € par trimestre. La taxe foncière est de 1090€.
La localisation de l'appartement est idéale pour profiter de la convivialité d'un quartier plein de vie aux portes de Paris.
De nombreux espaces verts entourent l'appartement : Hippodrome de Saint-Cloud, le Jardin Public de l'Avre ou encore le Jardin Public de Tourneroche
Le bien est à proximité des commerces et écoles (crèches, élémentaires, collèges, lycées).
L'appartement est parfaitement desservi par les transports : Il se trouve à 5 minutes à pied de la Gare du Val d'Or (Transilien Ligne L) et à une dizaine de minutes de l'arrêt de Tram Les Coteaux (T2) De nombreux bus circulent dans le quartier.
Hosman s'efforce de réinventer l'agence immobilière en offrant un service innovant et transparent aux acheteurs et aux vendeurs. Nos frais d'agence sont de 13 900 euros fixes à la charge du vendeur.
Si vous êtes un professionnel de l'immobilier (agent, mandataire ou chasseur immobilier), sachez que toutes les annonces Hosman sont ouvertes à la collaboration. N'hésitez pas à nous contacter pour en discuter.
73 m²
6 644 €
3
2
1
1
10 sur 10
Ouest
Oui
Oui
Consommations énergétiques
Logement économe
154
Logement énergivore (kWhEP/m2/an)
Émissions de gaz à effet de serre
Faible émission de GES
32
Forte émission de GES(kgeqCO2/m2/an)
Contact Julie Jaubert
Contacter gratuitement à l'aide du formulaire ci-dessous.