COURROUZE / ST JACQUES - Appartement 4 pièces 87.10m² - 5ème étage - ascenseur - balcon de 15.63m² - stationnements
Saint-Jacques-de-la-Lande 35136
0
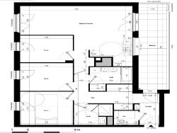
COURROUZE / ST JACQUES - A 500 m du métro - Appartement 4 pièces 87.10m² - 5ème étage - ascenseur - balcon de 15.63m² - stationnements privatifs A 500 mètres du métro ligne B, proche des écoles, services et infrastructures, découvrez ce superbe appartement de 4 pièces de 87,10 m², situé au 5ème étage d'une résidence contemporaine aux dernières normes avec ascenseur. Baigné de lumière grâce à son exposition plein sud, cet appartement offre un cadre de vie moderne et fonctionnel. Il se compose d'une entrée avec placards, d'un séjour-salon traversant avec cuisine ouverte, s'ouvrant sur un balcon de 15,63 m², idéal pour profiter des beaux jours. Côté nuit, vous trouverez trois chambres, une salle de bains avec espace pour lave-linge et placard, une salle d'eau ainsi qu'un WC indépendant. Ne manquez pas cette opportunité unique, parfaite pour un investissement locatif ou une résidence principale, alliant confort, modernité et praticité. Contactez-nous dès aujourd'hui pour plus d'informations ! Prix promoteur -Frais de notaire réduits. Les informations sur les risques auxquels ce bien est exposé sont disponibles sur le site Géorisques : www.georisques.gouv.fr Photos non contractuelles - Suggestions d'aménagements. Copropriété de 24 lots - dont 24 lots habitation. (Pas de procédure en cours). Charges annuelles : 1252 euros.