ST JACQUES DE LA LANDE - T4 avec double terrasse et 2 parkings
Saint-Jacques-de-la-Lande 35136
0
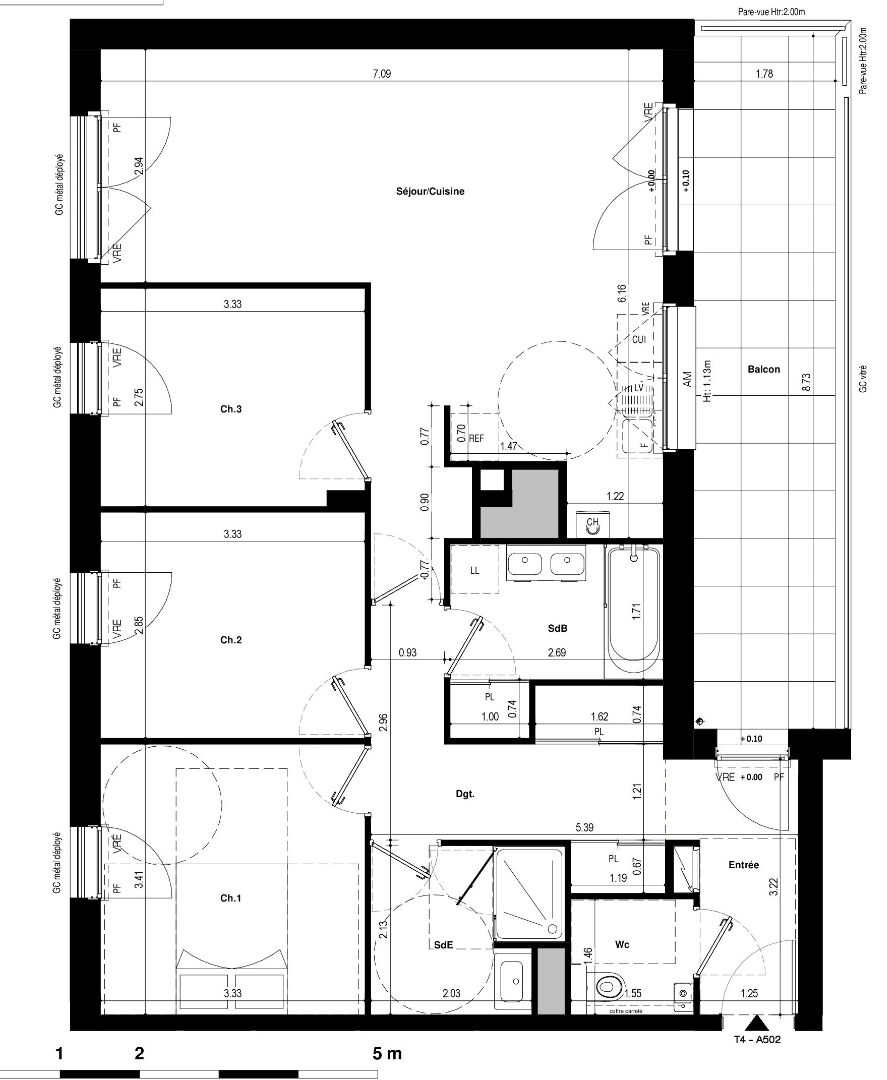
COGIR Neuf vous propose : A proximité immédiate du centre-ville, des commerces et du métro (370m), venez découvrir cet appartement 4 pièces au 3ème étage exposé Ouest comprenant : une entrée, un séjour/cuisine de 30.21 m², 3 chambres dont une suite parentale avec sde, et une avec placard, une salle d'eau avec WC et un second WC séparés. L'appartement bénéficie également de 2 terrasses (11.02 m² + 20.04 m²) et de 2 parkings en sous-sol. Vous serez séduits par les atouts de ce bien ! Prestations de qualités Eligible dispositif PINEL T2 à partir de 240 000 euros TTC T3 à partir de 340 000.00 euros TTC T4 à partir de 461 000.00 euros TTC Corinne BOUFFORT : 06.08.47.94.30 - CBN9339