DAX - T2 neuf dans une résidence entièrement rénovée
Dax 40100
0
Honoraires à la charge du vendeur.
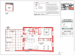
DAX T2 neuf de 35,55 m2 situé au sein d'une petite résidence de 8 logements, entièrement rénovée ou neuve, offrant des espaces extérieurs particulièrement agréables. Ce bien se compose d'une pièce de vie avec cuisine équipée, d'une salle d'eau aménagée, une chambre avec un placard, 1 WC ainsi que d'une terrasse. Il dispose également d'un box. Idéal tant pour une résidence principale que pour un investissement locatif, cet appartement présente de nombreux atouts pour un primo-accédant (appartement pouvant être subventionné) ou un investisseur. Sa situation en plein coeur du centre-ville permet un accès immédiat à toutes les commodités. Pour plus d'informations, n'hésitez pas à me contacter :Catherine Palacios EI Réseau REGM06 64 83 54 22catherinepalacios@regm.immo - Annonce rédigée et publiée par un Agent Mandataire -
35.55 m²
4 923 €
2
1
1
1
1 sur 3
1
Oui (8 lots)
Contact PALACIOS CATHERINE
Contacter gratuitement à l'aide du formulaire ci-dessous.