Découvrez la sérénité d'une demeure exceptionnelle à Hardelot avec vue sur le Golf des Pins
Neufchâtel-Hardelot 62152
0
Plongez au c?ur de cette majestueuse maison à rénover de 235 m² sur une parcelle arborée de 2580m² située dans un environnement privilégié offrant une vue dégagée sur le golf des Pins, sans vis-à-vis.
Nichée en bord de mer, cette demeure vous promet un style de vie empreint de tranquillité.
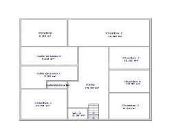
Avec ses 10 pièces spacieuses sur 2 niveaux, cette maison se compose de :
Au sous-sol : salle de jeux, chaufferie, buanderie, cave à vin, atelier, bar avec terrasse
Rez-de-chaussée : Belle entrée avec son vestiaire desservant un spacieux salon/salle à manger de 50M² avec sa cheminée et bénéficiant d'une triple exposition, donnant sur une grande terrasse ensoleillée avec sa vue sur le golf, cuisine indépendante, une chambre, un bureau, 2 wc indépendants.
A l'étage : palier desservant 4 chambres avec chacune un placard-penderie et lavabo, une salle de bains et une salle d'eau, un sas donnant accès à une suite parentale avec sa salle de bains et son dressing.
Au-dessus, combles aménageables
Cette maison est idéale pour une grande famille.
Laissez-vous charmer par cette opportunité unique ! Contactez Emmanuelle Gaillard pour organiser une visite.
Cette annonce référence 306563 vous est présentée par votre agent commercial BSK Immobilier EMMANUELLE GAILLARD (EI) immatriculé au RSAC de BOULOGNE-SUR-MER (62200) sous le numéro 93907422500011.
Prix du bien : 1 102 000,00 €
Les honoraires d'agence sont à la charge du vendeur.
A propos des performances énergétiques :
Date de réalisation du diagnostic énergétique : 21/03/2024
Score DPE : 270 kWhEP/m²/an
Score GES : 27 kgepCO2/m²/an
Montant estimé des dépenses annuelles d'énergie pour un usage standard : entre 2850.00 € et 3910.00 € par an. Prix moyens des énergies indexés sur l'année 2021 (abonnements compris).
Les informations sur les risques auxquels ce bien est exposé sont disponibles sur le site Géorisques : www.georisques.gouv.fr
235 m²
4 689 €
10
6
1
1
2
1973
Oui
Consommations énergétiques
Logement économe
270
Logement énergivore (kWhEP/m2/an)
Émissions de gaz à effet de serre
Faible émission de GES
27
Forte émission de GES(kgeqCO2/m2/an)
Contact EMMANUELLE GAILLARD
Contacter gratuitement à l'aide du formulaire ci-dessous.