Dernier étage avec terrasse de 82 m2 centre Craponne
Craponne 69290
0
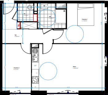
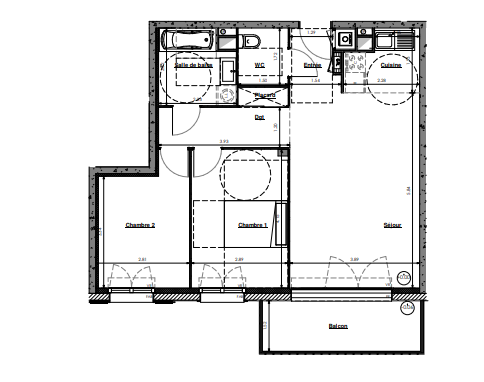
A visiter rapidement ! Vous rêvez d'un appartement en plein centre Craponne avec tout le confort moderne et un extérieur généreux pour profiter de bons moments en famille ou entre amis ? Ne cherchez plus ! Cet appartement de 89 m2 est un véritable cocon. Dès votre entrée, vous serez charmé par une pièce de vie spacieuse de 42 m2, baignée de lumière naturelle. Imaginez vos soirées cocooning ou vos repas partagés dans cet espace convivial, qui respire le bien-être et la détente. L'appartement dispose de 3 chambres, dont une suite parentale avec salle d'eau privative, parfaite pour des réveils tout en douceur. Les deux autres chambres sont idéales pour accueillir vos enfants, vos amis ou créer votre espace bureau. Le véritable atout de ce bien ? Sa grande terrasse de plus de 80 m2 idéalement exposée Sud et Ouest rare en centre-ville ! Une vue sur les Monts d'Or qui vous rappellera chaque jour pourquoi vous avez choisi cet endroit Ce n'est pas juste un appartement, c'est l'endroit où vos souvenirs prendront vie et où chaque coucher de soleil sera une invitation à la détente. Venez découvrir ce lieu unique, et laissez-vous séduire par ce petit coin de paradis.
Prestations de qualité et finitions soignées, tout est prêt pour poser vos valises À deux pas des commerces, écoles et transports pour une vie pratique et agréable Un cadre de vie sécurisé et un équilibre parfait entre ville et campagne à quelques kilomètres de Lyon
N'hésitez pas à me contacter pour des informations supplémentaires Aurélie BELIN 06 16 83 85 51 aurelie.belin@smartproprio.com - Annonce rédigée et publiée par un Agent Mandataire -
89 m²
6 236 €
42 m²
4
3
1
1
1
3 sur 3
2025
Sud
Ouest
Oui
Oui
1
Oui
Contact BELIN AURELIE
Contacter gratuitement à l'aide du formulaire ci-dessous.