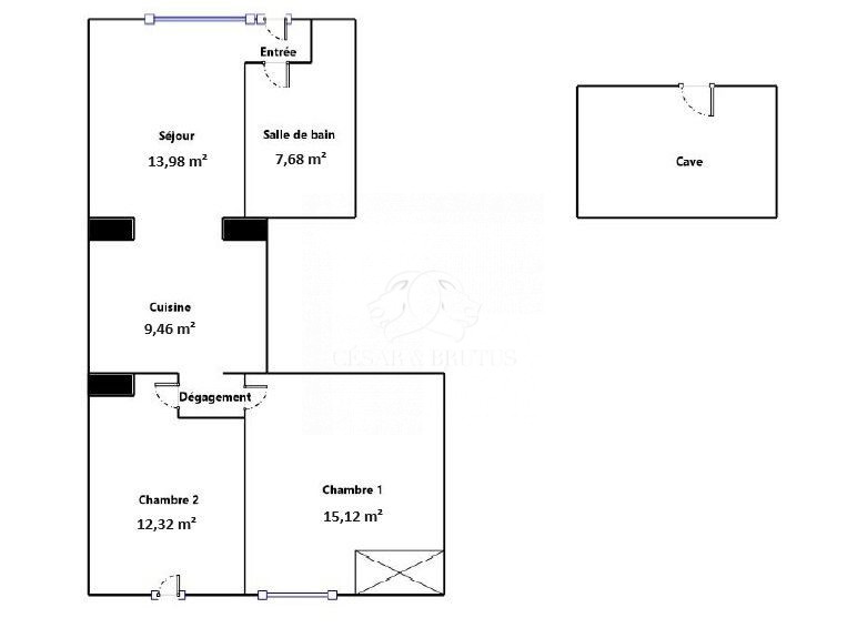
Vanessa ETIENNE et César et brutus vous proposent un appartement de 70m² avec balcon, loggia et cave.
Cet appartement traversant, très lumineux, se compose d'une grande pièce de vie avec un accès à un balcon vous permettant de profitez d'une vue sublime sur Lyon et le Mont Blanc. Une cuisine indépendante, aménagée et équipée.
Coté nuit, deux belles chambres de 10,42 et 12,52m² (possibilité d'une 3ème facilement), une salle de bains rénovées et un WC indépendant.
Des places de stationnements sont libres dans la copropriété et une cave en sous sol complètent ce bien.
Doubles vitrages récent dans l'appartement, les charges annuelles incluent l'entretien de la copropriété ainsi que le chauffage.
Pour infos: Loyer de référence majoré pour ce bien en T4: 840/mois hors charges
Pour tous vos projets immobiliers: achat, vente, gestion locative, syndic, financement, je réponds à vos questions.
Honoraires à la charge du vendeur. Dans une copropriété de 631 lots. Quote-part moyenne du budget prévisionnel 2 566 /an. Aucune procédure n'est en cours. Classe énergie E, Classe climat E. Les informations sur les risques auxquels ce bien est exposé sont disponibles sur le site Géorisques : georisques.gouv.fr. Ce bien vous est proposé par un agent commercial (Entreprise individuelle).
Votre conseiller CESAR ET BRUTUS : Vanessa ETIENNE Agent commercial (Entreprise individuelle) RSAC 901359828 LYON