Dernier Etage Terrasses Ensoleillées avec Vue Déagée
Bordeaux 33000
0
Honoraires à la charge du vendeur.
DERNIER ETAGE TERRASSES ENSOLEILLEES DANS BORDEAUX
Le Quai des Queyries, dans le quartier de la Bastide à Bordeaux, offre un cadre de vie prisé et dynamique, avec de superbes vues sur le centre historique de la ville, en bord de Garonne. Alliant modernité et patrimoine, le quartier propose de nombreux espaces verts, notamment le Jardin Botanique, et une vie de quartier animée avec ses restaurants, commerces, marchés et espaces culturels, comme Darwin et la Cité du Vin. Bien desservi par le tramway et les pistes cyclables, il permet un accès rapide au centre-ville et dispose de toutes les commodités pour les familles et les étudiants, faisant de la Bastide un secteur idéal pour un cadre de vie agréable, calme et naturel préservé.
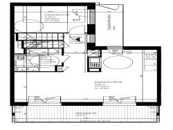
Découvrez ce magnifique appartement T4 niché au dernier étage dans une résidence neuve et à taille humaine, offrant un cadre de vie contemporain et exceptionnel. Doté d'une terrasse en bois, exposée Sud-Ouest, cet espace extérieur baigné de soleil est parfait pour profiter des beaux jours et se détendre en plein air.
À l'intérieur, l'appartement présente une entrée, une chambre confortable, une salle de bains double vasque moderne et ses WC avec buanderie attenante et surtout une belle pièce de vie ouverte de 34m2. Grâce à deux grandes ouvertures donnant sur la terrasse sans vis à vis avec vue dégagée, cette pièce bénéficie d'une luminosité naturelle exceptionnelle, créant une ambiance conviviale et chaleureuse, idéale pour recevoir ou simplement se détendre chez soi.
A l'étage, vous trouverez deux chambres avec un autre WC indépendant, une salle d'eau et une deuxième terrasse elle aussi ensoleillée avec vue dégagée.
Un véritable havre de paix, où le confort rencontre la modernité.
Une place de parking complète le bien.
- Frais de Notaires Réduits - Aucun Travaux à Prévoir - Garanties - RT 2012 - ...
Visuel non contractuel suggestion d'aménagement
DERNIER ETAGE TERRASSES ENSOLEILLEES DANS BORDEAUX
Honoraires à la charge du vendeur. Dans une copropriété de 34 lots. Aucune procédure n'est en cours. DPE en cours. Les informations sur les risques auxquels ce bien est exposé sont disponibles sur le site Géorisques : georisques.gouv.fr.