UNE TERRASSE UNIQUE EN DERNIER ETAGE POUR VOUS ET VOTRE FAMILLE
À Bordeaux, dans un quartier à la fois dynamique et serein, découvrez une résidence où l'architecture contemporaine dialogue avec la nature et l'identité locale.
À deux pas du tramway, des commerces, des services de proximité et d'une crèche, cette adresse offre un quotidien simplifié dans un environnement apaisé. Véritable cocon végétal, la résidence se structure autour de cheminements en pierre et bois, conçus comme une promenade naturelle entre les bâtiments. Ici, les matériaux authentiques tels que la brique, le bois brûlé ou la cale bordelaise confèrent une vraie âme au lieu, en parfaite harmonie avec le paysage bordelais.
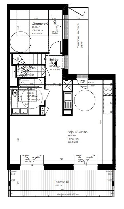
Au dernier étage, ce magnifique appartement T5 de 104 m² propose un agencement traversant idéal. Sur votre gauche dès l'entrée, une vaste pièce de vie de 36 m² vous accueille, suivie d'une suite parentale élégante avec salle d'eau, WC et dressing. Ces deux espaces s'ouvrent sur une première terrasse exposée Ouest, où lumière naturelle, vue dégagée et couchers de soleil inoubliables deviennent le décor de vos soirées entre amis.
Sur l'aile opposée, trois chambres intimistes vous attendent, Une salle de bain indépendante et un WC séparé viennent parfaire l'ensemble, pour un confort quotidien fluide et familial.
Pour couronner le tout : depuis la terrasse principale, un escalier vous conduit vers une extraordinaire terrasse rooftop de près de 105 m², dominant la résidence et offrant un panorama unique sur la ville et les toits du quartier. Un véritable espace de vie à ciel ouvert, rêvé pour vos dîners d'été, apéritifs entre proches ou célébrations sous les étoiles. Un bien rare, aux volumes exceptionnels et à la vue imprenable, pour vivre Bordeaux en grand.
Deux places de parking (en SUS 30 000) complètent ce bien.
- Disponible Immédiatement - Aucun travaux à prévoir - Frais de Notaires Réduits - Garanties - RT 2012 - ...
UNE TERRASSE UNIQUE EN DERNIER ETAGE POUR VOUS ET VOTRE FAMILLE
Honoraires à la charge du vendeur. Dans une copropriété de 19 lots. Aucune procédure n'est en cours. Classe énergie A, Classe climat A Montant estimé des dépenses annuelles d'énergie pour un usage standard : entre 410.00 et 600.00 sur les années 2021, 2022 et 2023 (abonnements compris). Les informations sur les risques auxquels ce bien est exposé sont disponibles sur le site Géorisques : georisques.gouv.fr.
Votre conseiller RH Patrimoine : Gérant associé - Philippe HERVE Carte T CPI 3301 2018 000 029 220
104 m²
4 135 €
36 m²
5
4
1
1
2 (séparés)
8 sur 8
2024
Ouest
Oui
2
Oui
Oui
2
Oui
Oui
Oui (19 lots)
Consommations énergétiques
Logement économe
50
Logement énergivore (kWhEP/m2/an)
Émissions de gaz à effet de serre
Faible émission de GES
3
Forte émission de GES(kgeqCO2/m2/an)
Contact Philippe HERVE
Contacter gratuitement à l'aide du formulaire ci-dessous.