UN BIEN RARE AU COEUR DU CENTRE-VILLE QUI N'ATTENDS PLUS QUE VOUS
C'est au coeur de son centre-ville, à deux pas de l'église, que se niche votre appartement et son îlot arboré, une situation idéale à proximité immédiate des commerces, des écoles, des services de santé et des équipements culturels.
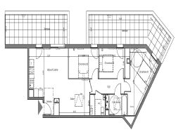
Découvrez ce superbe T4 de 83 m², où espace intérieur et larges extérieurs s'harmonisent pour votre plus grand confort. La grande pièce de vie de 34 m² s'ouvre sur une terrasse de 21 m², idéale pour profiter de vos moments en famille ou entre amis tout au long des quatre saisons.
Côté nuit, trois chambres accueillantes dont une avec espace dressing, chacune donnant accès à une seconde terrasse de 27 m², faisant de cet appartement un lieu résolument tourné vers l'extérieur et la convivialité.
La salle de bain moderne dispose d'un meuble double vasque et de faïences toute hauteur, tandis que le WC indépendant complète l'agencement fonctionnel du logement.
Un appartement spacieux et confortable en plein coeur du centre-ville, pour faire de chaque journée un moment privilégié avec votre famille.
Deux places de parking (en sus 30 000) complètent ce bien.
- Aucun travaux à prévoir - Frais de Notaires Réduits - Garanties - RT 2012 - ...
UN BIEN RARE AU COEUR DU CENTRE-VILLE QUI N'ATTENDS PLUS QUE VOUS
Honoraires à la charge du vendeur. Dans une copropriété de 43 lots. Aucune procédure n'est en cours. DPE en cours. Les informations sur les risques auxquels ce bien est exposé sont disponibles sur le site Géorisques : georisques.gouv.fr.