Opportunité d'investissement à Vendel (35140)
- Idéal pour investisseur !
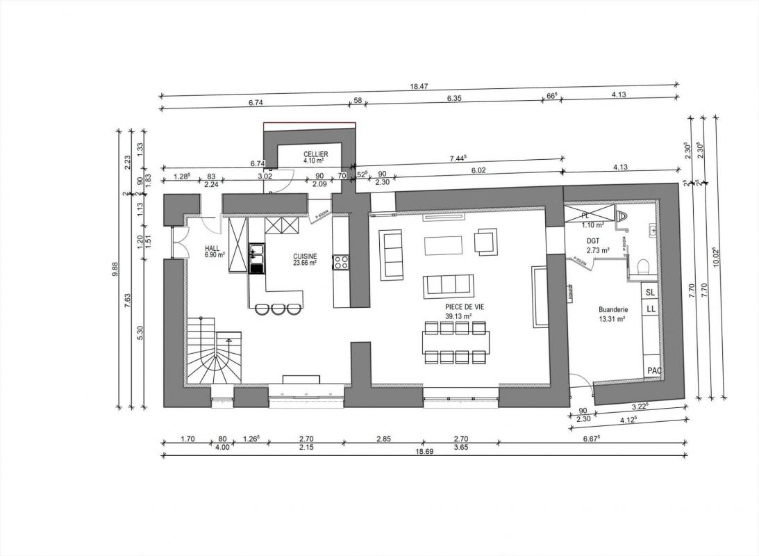
Deux maisons mitoyennes de 200m2 environ, situées au c?ur du bourg.
Au rez-de-chaussée : Cuisine équipée, salle de bain moderne et vaste salon, offrant un cadre de vie agréable.
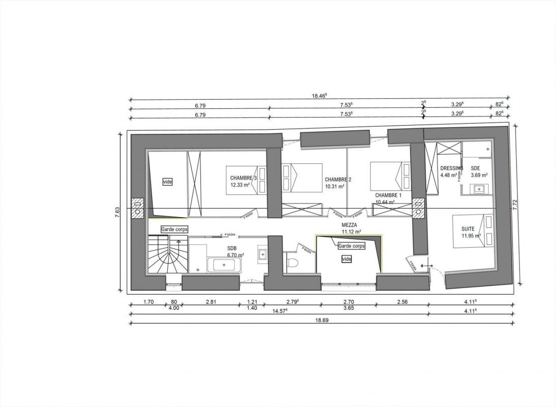
À l'étage : 5 chambres lumineuses avec toilettes attenantes, offrant confort et intimité à vos locataires.
Comble aménageable pour optimiser l'espace selon vos besoins ou pour développer d'autres projets.
Travaux à prévoir.
Ces propriétés offrent un potentiel locatif attractif dans un emplacement recherché.
Ne manquez pas cette opportunité !
Contactez-moi dès maintenant pour organiser une visite.
Cette annonce référence 231096 vous est présentée par votre agent commercial BSK Immobilier HUGO RESLOUX (EI) immatriculé au RSAC de RENNES (35000) sous le numéro 75076690900022.
Prix du bien : 178 990,00 €
Les honoraires d'agence sont à la charge du vendeur.
A propos des performances énergétiques :
Date de réalisation du diagnostic énergétique : 21/10/2022
Score DPE : 242 kWhEP/m²/an
Score GES : 8 kgepCO2/m²/an
Montant estimé des dépenses annuelles d'énergie pour un usage standard : entre 1960.00 € et 2700.00 € par an. Prix moyens des énergies indexés sur l'année 2021 (abonnements compris).
Les informations sur les risques auxquels ce bien est exposé sont disponibles sur le site Géorisques : www.georisques.gouv.fr
200 m²
895 €
7
5
1
1948
Consommations énergétiques
Logement économe
242
Logement énergivore (kWhEP/m2/an)
Émissions de gaz à effet de serre
Faible émission de GES
8
Forte émission de GES(kgeqCO2/m2/an)
Contact Iad France - Hugo RESLOUX
Contacter gratuitement à l'aide du formulaire ci-dessous.