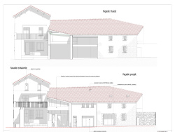
Au centre du village de Chantemerle les Blés, dépendance de 82 m2 répartis sur 2 niveaux avec terrasse de 25 m2. Changement de destination et permis de construire validés pour transformer cette dépendance en petit nid douillet de 3 pièces. L'aménagement intérieur reste libre, mais nous avons travaillé avec l'architecte pour vous proposer une jolie pièce de vie avec cellier et toilettes au rez de chaussée, 2 chambres et salle de bains avec toilettes à l'étage. La toiture, l'isolation sous toiture et les dalles ont été réalisés en 2023. Compteurs d'eau et d'électricité individuels, relié au tout à l'égout. Le prix inclut également les aménagements extérieurs et 2 places de stationnement. Au calme, à seulement 5 min de Tain l'Hermitage et de toutes les commodités, des accès autoroutiers et voie ferrée, 50 min de Lyon, 1h de Grenoble, 30 min de Valence. Copropriété horizontale de 5 lots en cours de création. Proposé par Hélène RAFFY. PREMIER CONTACT PAR TELEPHONE. Les informations sur les risques auxquels ce bien est exposé sont disponibles sur le site Géorisques : www.georisques.gouv.fr - Annonce rédigée et publiée par un Agent Mandataire -
82 m²
1 341 €
35 m²
25 m²
3
2
1
2
1900
Ouest
Nord
2
1
Contact RAFFY
Contacter gratuitement à l'aide du formulaire ci-dessous.